Skip the navigation and jump to this page's content.

4780 Westney Road Pickering, Ontario

$2,496,000
6 Beds
  4 Full / 2 Half
Virtual Tour

PROPERTY INFO

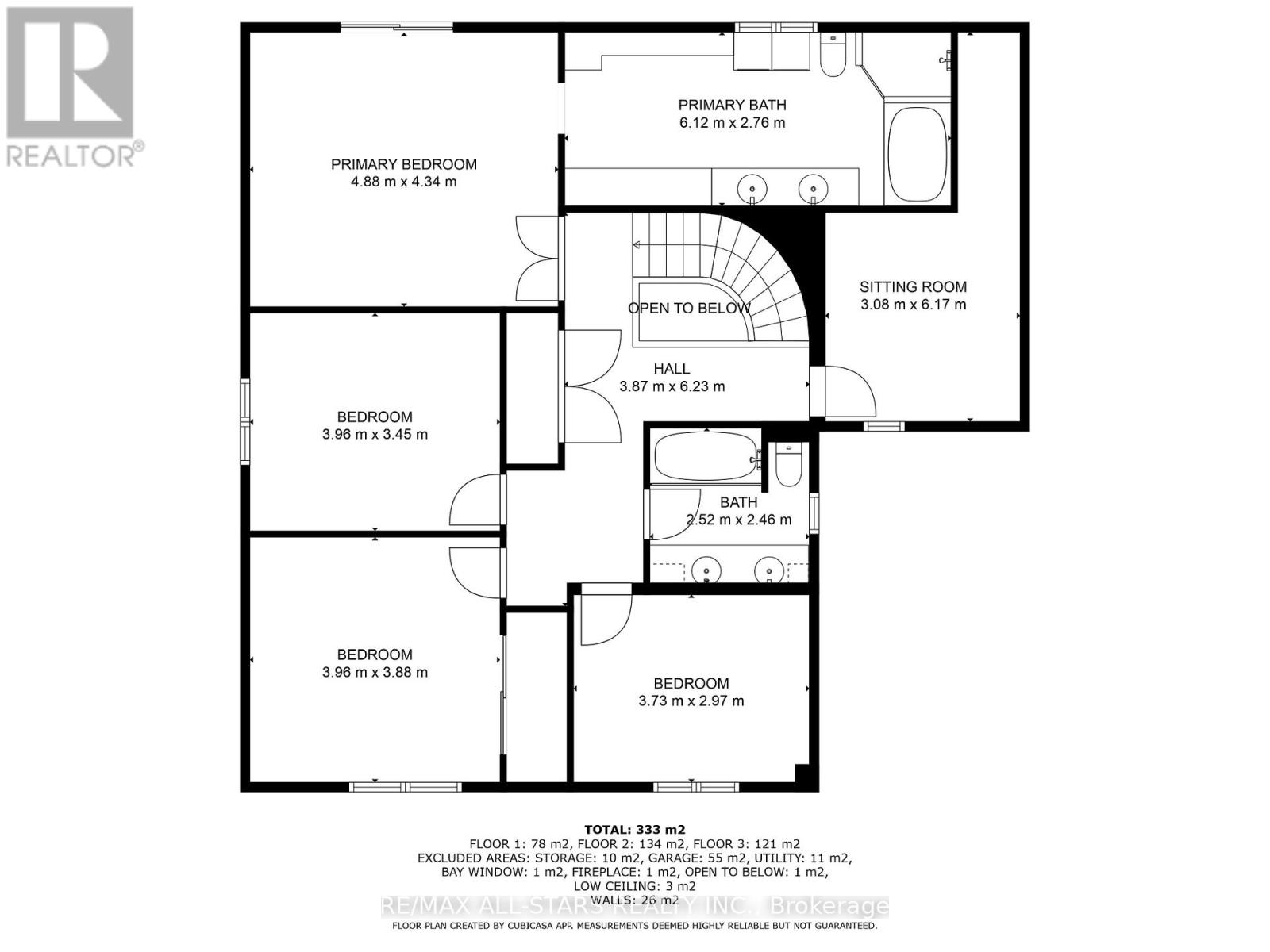
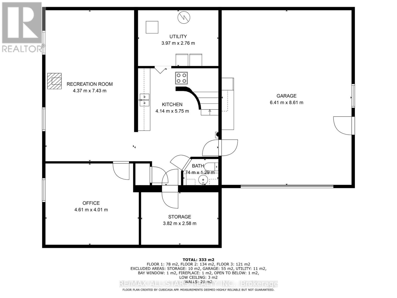
**Floor plans & virtual tour attached** Set on 15 private acres and tucked well back from the road, this exceptional property blends space, comfort, and flexibility. A long driveway with ample parking welcomes you to a bright, functional home offering 5+1 bedrooms and 4 bathrooms, designed for everyday living and easy entertaining. The main level features a formal living room, dedicated dining room, and cozy family room-perfect for gatherings or quiet nights in. At the center is a chef-inspired kitchen with high-end appliances, generous prep space, and an open flow to the living areas. Large windows fill the home with natural light and serene countryside views.The primary suite is a true retreat with custom cabinetry, a spa-like 5-piece ensuite, and a private balcony overlooking the peaceful backyard. A fully finished basement with separate entrance adds outstanding versatility-ideal for in-laws, guests, rental potential, or a home-based business.Outside, enjoy a massive 32' x 64' heated workshop with two front loading doors and one rear door-perfect for hobbyists, entrepreneurs, or storing equipment and toys. A whole-home Generac generator provides peace of mind year-round. Endless potential on this property; peace, privacy & potential. Conveniently located a short drive to Stouffville, Markham, and Uxbridge, with quick access to Hwy 407. **Property currently benefits from a farm tax classification. Continuation is subject to buyer eligibility and re-application. Buyers may choose not to pursue the farm tax program. (id:4555)

PROPERTY SPECS

Price $2,496,000
City Pickering, Ontario
Bed / Bath 6 / 4 Full, 2 Half
Address 4780 Westney Road
Listing ID E12608228
Flooring Hardwood, Laminate, Carpeted
Parking 12.00
Type Farm
Status For Sale

EXTENDED FEATURES

Subtype Agriculture Community Features School Bus Features Wooded area, Gazebo Ownership Freehold Basement Finished, Separate entrance, N/A Heating / Cooling Heat Pump, Not known, Electric Sewer Septic System Parking 12.00



team photo
Windsor: 519-903-9355
Toronto: 905-220-7333
Office: 905-335-3042

REQUEST MORE INFORMATION

Grocery Stores
Schools
Restaurants
Gas Stations
Banks
Parks
Transit
Police
Fire Station
Place of Worship
Please select an amenity above to view a list.





team photo

Connect with Us

Loading...