Skip the navigation and jump to this page's content.

43 Coulter Street Perth East, Ontario

$849,900
3 Beds
  2 Full

PROPERTY INFO

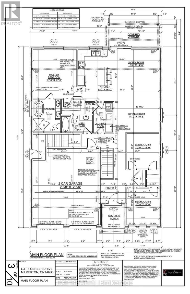
HST REBATE AVAILABLE, SAVE 10'S OF THOUSANDS. REACH OUT FOR MORE DETAILS!!! Welcome to this thoughtfully crafted to-be-built 1,500 sq. ft. bungalow set on a desirable 50' x 120' lot in the heart of Milverton. Designed with flexibility in mind, buyers can choose between a 3-bedroom layout-perfect for families-or a 2-bedroom option that provides larger, more luxurious living spaces. From the moment you step inside, you'll appreciate the elevated standard features that come included: 9-foot main-floor ceilings, quartz countertops throughout, and a bright, open-concept living area that blends comfort with contemporary style. The main floor offers two full bathrooms, including a private primary ensuite and a well-appointed 4-piece bath for guests or family. While the home is already impressively appointed, buyers have the opportunity to take it even further with optional upgrades such as enhanced millwork, upgraded flooring selections, premium lighting packages, Glass railings and wine displays, and more-all allowing you to tailor the finishes to your taste and lifestyle. For those seeking even more living space, a basement finishing option is available for an additional cost, providing the ideal place for a rec room, extra bedrooms, or a home office. This is your chance to build a brand-new bungalow that reflects your style from day one-beautifully designed, thoughtfully planned, and ready to customize to perfection. (id:4555)

PROPERTY SPECS

Price $849,900
City Perth East, Ontario
Bed / Bath 3 / 2 Full
Address 43 Coulter Street
Listing ID X12632058
Style Bungalow, House
Fireplace 1.00
Parking 4.00
Type Residential
Status For Sale

EXTENDED FEATURES

Subtype Single Family Features Flat site Ownership Freehold Basement Unfinished, Full Heating / Cooling Forced air, Natural gas Sewer Sanitary sewer Parking 4.00



team photo
Windsor: 519-903-9355
Toronto: 905-220-7333
Office: 905-335-3042

REQUEST MORE INFORMATION

Grocery Stores
Schools
Restaurants
Gas Stations
Banks
Parks
Transit
Police
Fire Station
Place of Worship
Please select an amenity above to view a list.





team photo

Connect with Us

Loading...