Skip the navigation and jump to this page's content.

310 Ormond Drive Oshawa, Ontario

$629,000
4 Beds
  2 Full
Virtual Tour

PROPERTY INFO

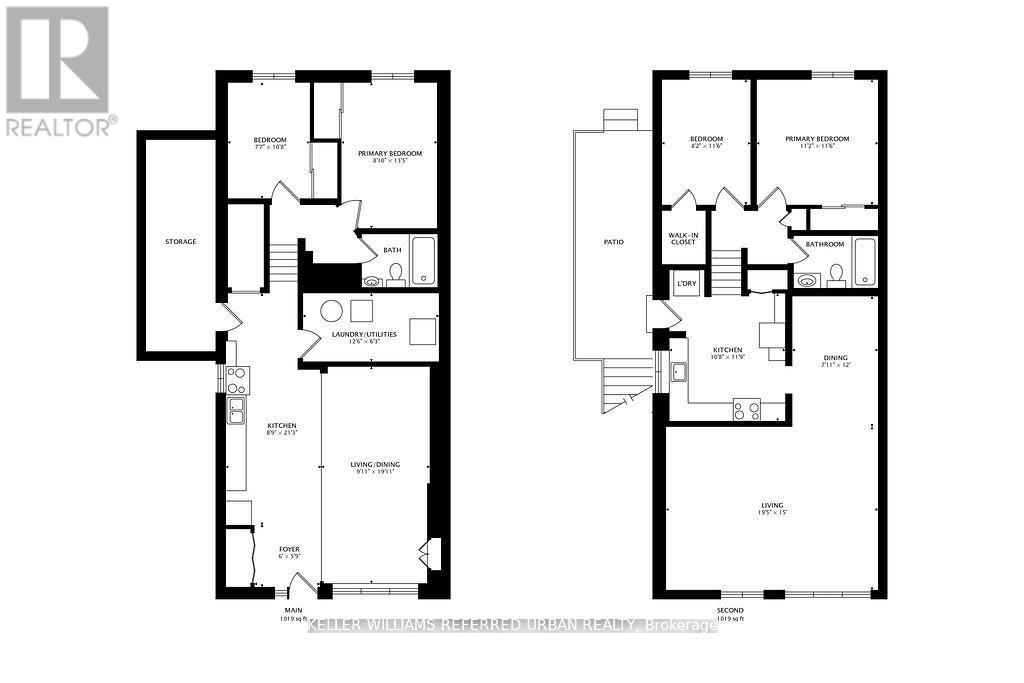
Welcome to 310 Ormond Dr. This charming duplex offers a unique opportunity for both investors and homeowners alike. With its convenient location, spacious layout, and attractive rental income, this duplex presents an excellent investment opportunity in the Durham real estate market. The property is designated as a duplex and consist of 2 self-contained units. Each unit features 2 spacious bedrooms, ensuite laundry, well laid out living spaces with large window for excellent light exposure, parking space, and large yard. Combine this with the convenience to highway, stores, parks and transit this property is not to be missed. Oshawa's real estate market continues to show promising growth, making this duplex an excellent investment opportunity. Whether you're a seasoned investor or a first-time buyer looking to build equity, this property offers long-term potential for capital appreciation. (id:4555)

PROPERTY SPECS

Price $629,000
City Oshawa, Ontario
Bed / Bath 4 / 2 Full
Address 310 Ormond Drive
Listing ID E12599564
Style Duplex
Flooring Hardwood, Laminate, Ceramic
Parking 2.00
Type Multi-Family
Status For Sale

EXTENDED FEATURES

Ownership Freehold Basement Finished, Separate entrance, N/A Heating / Cooling Forced air, Natural gas Sewer Sanitary sewer Parking 2.00



team photo
Windsor: 519-903-9355
Toronto: 905-220-7333
Office: 905-335-3042

REQUEST MORE INFORMATION

Grocery Stores
Schools
Restaurants
Gas Stations
Banks
Parks
Transit
Police
Fire Station
Place of Worship
Please select an amenity above to view a list.





team photo

Connect with Us

Loading...