Skip the navigation and jump to this page's content.

73 Parkside Drive Oro-Medonte, Ontario

$1,995,000
4 Beds
  3 Full
Virtual Tour

PROPERTY INFO

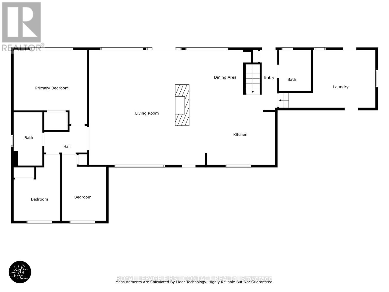
Lovely open concept bungalow on a 100 ft of prime waterfront and 203 ft deep lot, on quiet Parkside Drive, a short walk to Bayview Memorial Park. Large front & back yards, unobstructed views of Lake Simcoe, 4 bedrooms, 3 baths, 1788 sq ft on main, 3004 sq ft finished on 2 levels. At the water are a boathouse 24'4" x 12'0" (9'10" wide inside), marine rail & dock, enjoy sitting on the water side deck or the upper deck of the boathouse with glass railings. Beautifully renovated both upstairs and down with stylish kitchen, dining & living room with stone fireplace center piece, all with amazing views of the water. Updated bedrooms & baths as well. It all shows to perfection up & down. Find a gas fireplace down as well, with a nice family room, office & storage alongside the bedroom & bath. Spacious main floor laundry, inside entrance from an oversized double garage with a 6+ car driveway. Well maintained & updated: windows, doors & garage doors, furnace & air conditioner, deck, front tumble stone walkway and driveway have been replaced. There is a shed, 10kw backup generator, hot tub, central vac & UV filter, extra spray foam insulation, cable & high speed internet..... Pride of Ownership. (id:4555)

PROPERTY SPECS

Price $1,995,000
City Oro-Medonte, Ontario
Bed / Bath 4 / 3 Full
Address 73 Parkside Drive
Listing ID S12873050
Style Bungalow, House
Flooring Hardwood
Fireplace 2.00
Parking 8.00
Type Residential
Status For Sale

EXTENDED FEATURES

Subtype Single Family Features Level lot, Rolling, Level, Sump Pump Ownership Freehold Views Lake view, View, View of water, Direct Water View, Unobstructed Water View Basement Finished, Full Heating / Cooling Forced air, Natural gas Sewer Septic System Parking 8.00



team photo
Windsor: 519-903-9355
Toronto: 905-220-7333
Office: 905-335-3042

REQUEST MORE INFORMATION

Grocery Stores
Schools
Restaurants
Gas Stations
Banks
Parks
Transit
Police
Fire Station
Place of Worship
Please select an amenity above to view a list.





team photo

Connect with Us

Loading...