Skip the navigation and jump to this page's content.

5 Ontario Street Unit# B Orillia, Ontario

$12
  1 Full

PROPERTY INFO

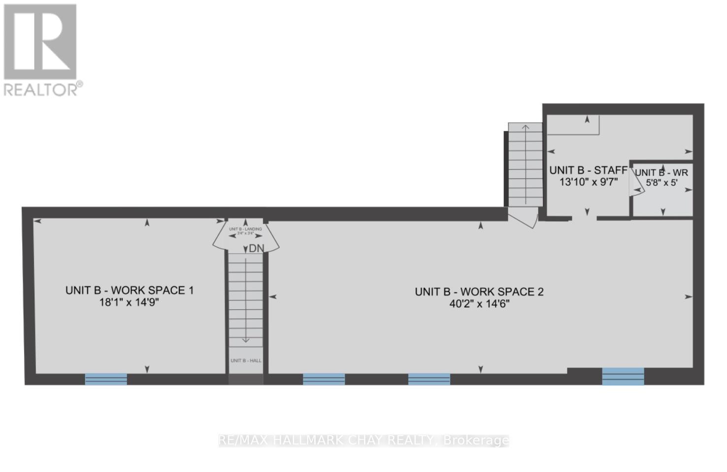
Excellent Office space available on second floor with A/C. Two large open areas with plenty of windows. Newly painted and carpeted with LED lighting being installed. Kitchennete area. One two-piece washroom. Unit can be combined with Unit C wharehouse. Easy access to Hwy 11. TMI $4.75 (2026) incl. water. (id:4555)

PROPERTY SPECS

Lease $12
City Orillia, Ontario
Bath 1 Full
Address 5 Ontario Street Unit# B
Listing ID S12677916
Style Offices
Type Industrial/Commercial
Status For Lease

EXTENDED FEATURES

Subtype Office Ownership Leasehold Heating / Cooling Forced air, Natural gas



team photo
Windsor: 519-903-9355
Toronto: 905-220-7333
Office: 905-335-3042

REQUEST MORE INFORMATION

Grocery Stores
Schools
Restaurants
Gas Stations
Banks
Parks
Transit
Police
Fire Station
Place of Worship
Please select an amenity above to view a list.





team photo

Connect with Us

Loading...