Skip the navigation and jump to this page's content.

673 Brant Waterloo Road Unit# 518 North Dumfries, Ontario

$375,000
2 Beds
  1 Full

PROPERTY INFO

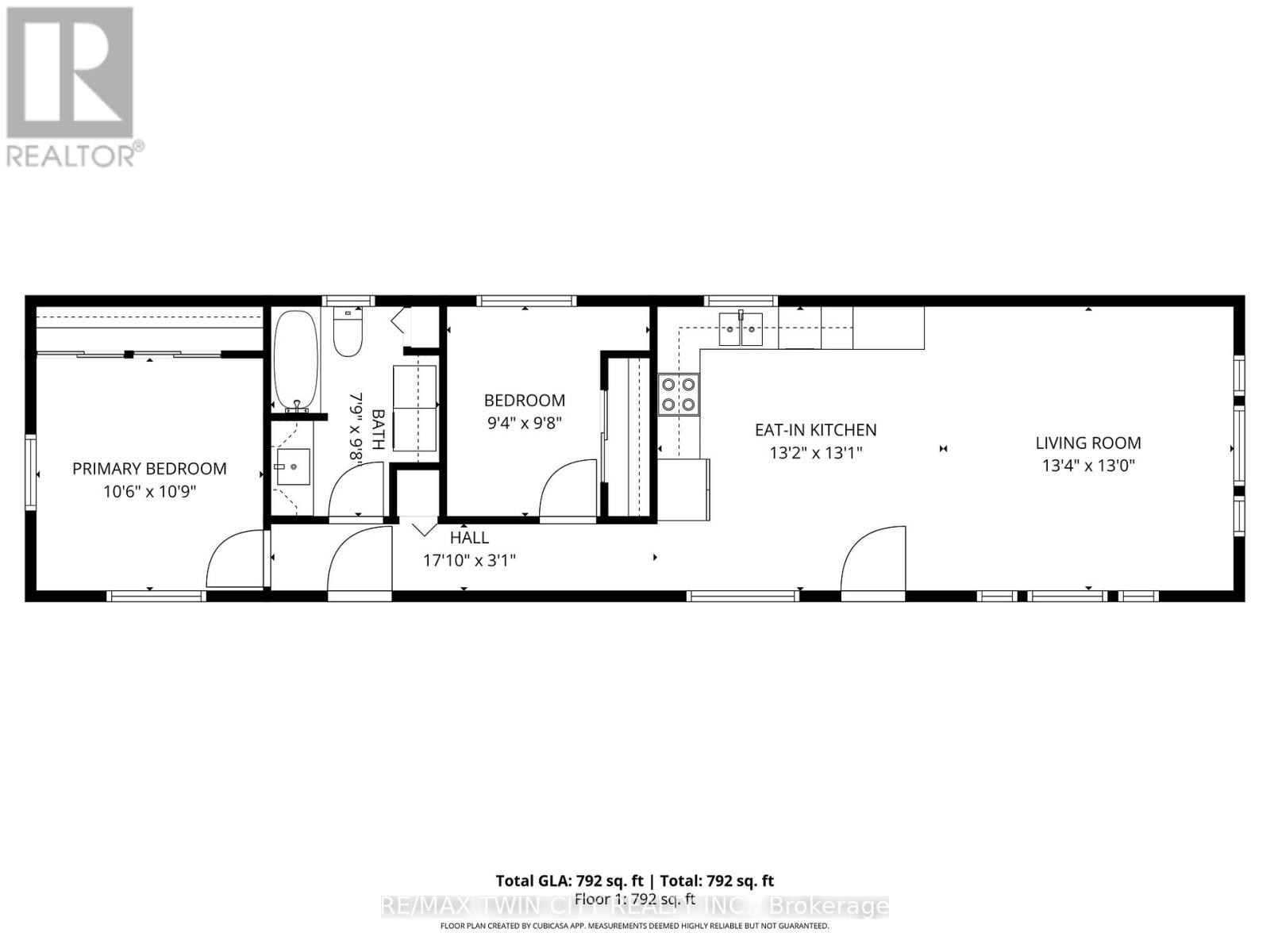
Welcome to Unit #518, a beautifully updated Northlander model offering the rare privilege of year-round living in the family-owned and operated Hillside Lake Park. Over the past few years, this home has undergone extensive renovations and presents a fresh, move-in-ready space to call your own. Step inside to find new vinyl plank flooring, fresh paint, upgraded lighting, and custom zebra blinds throughout. The stylish eat-in kitchen features upgraded cabinetry, stainless steel appliances, and a rough-in for a dishwasher. A spacious living room with two large windows fills the home with natural light, while the primary bedroom offers comfortable proportions right beside the 4-piece bathroom with in-suite laundry. A second bedroom or flex room makes the perfect spot for an office, craft space, or guest room. Outdoors, you'll love spending time on the massive 40' x 12' covered deck, complete with a 10' x 12' screened-in room-perfect for morning coffee or evening gatherings. The exterior of this home is surrounded by mature trees and features a fire pit, deck with gazebo, and two sheds for extra storage. Included in the sale are tons of extras such as outdoor furniture, shelving, firewood, and more! Very rarely do these year-round units come up for sale, especially ones with these upgrades, so DO NOT miss your chance! Book your showing today! [Monthly rent: $540.04 (additional fees apply)] (id:4555)

PROPERTY SPECS

Price $375,000
City North Dumfries, Ontario
Bed / Bath 2 / 1 Full
Address 673 BRANT WATERLOO Road Unit# 518
Listing ID X12794218
Style Bungalow, Mobile Home
Parking 2.00
Type Residential
Status For Sale

EXTENDED FEATURES

Subtype Single Family Community Features School Bus Features Conservation/green belt, Gazebo Ownership Freehold Basement None Heating / Cooling Forced air, Electric Sewer Septic System Parking 2.00



team photo
Windsor: 519-903-9355
Toronto: 905-220-7333
Office: 905-335-3042

REQUEST MORE INFORMATION

Grocery Stores
Schools
Restaurants
Gas Stations
Banks
Parks
Transit
Police
Fire Station
Place of Worship
Please select an amenity above to view a list.





team photo

Connect with Us

Loading...