Skip the navigation and jump to this page's content.

31 Oakwood Avenue Norfolk, Ontario

$564,500
5 Beds
  2 Full
Virtual Tour

PROPERTY INFO

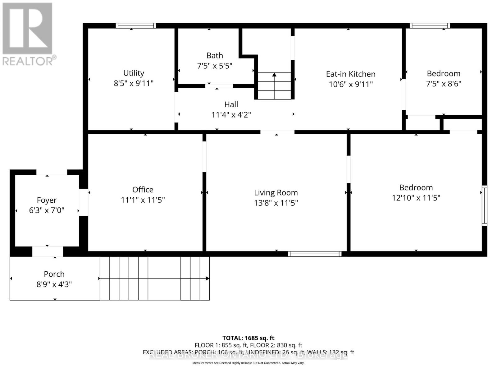
Attention investors and smart owner-occupants. This solid all-brick bungalow is located in a quiet, family-friendly neighbourhood in Simcoe and is currently configured as a duplex-style residence, offering flexible income and living potential.The main floor unit features a bright layout with three bedrooms, kitchen, bathroom, and access to the attached garage. The lower-level suite, complete with a separate entrance, includes two bedrooms, a four-piece bathroom, a spacious recreation room, and a dedicated laundry area-ideal for generating rental income or providing extended family accommodations.This property is a registered legal rental with Norfolk County and benefits from separately metered hydro for each level, allowing for independent utility management and simplified cost recovery. Recent updates include the roof, windows, and mechanical systems, enhancing long-term reliability and reducing future capital expenditures.Well-suited for investors seeking a turnkey income property or owner-occupants looking to offset mortgage costs, this versatile home offers strong functionality, durable construction, and excellent income potential in a desirable Simcoe location. (id:4555)

PROPERTY SPECS

Price $564,500
City Norfolk, Ontario
Bed / Bath 5 / 2 Full
Address 31 Oakwood Avenue
Listing ID X12530606
Style Raised bungalow, House
Parking 3.00
Type Residential
Status For Sale

EXTENDED FEATURES

Subtype Single Family Community Features School Bus Features In-Law Suite Ownership Freehold Basement Finished, Separate entrance, N/A Heating / Cooling Forced air, Natural gas Sewer Sanitary sewer Parking 3.00



team photo
Windsor: 519-903-9355
Toronto: 905-220-7333
Office: 905-335-3042

REQUEST MORE INFORMATION

Grocery Stores
Schools
Restaurants
Gas Stations
Banks
Parks
Transit
Police
Fire Station
Place of Worship
Please select an amenity above to view a list.





team photo

Connect with Us

Loading...