Skip the navigation and jump to this page's content.

3327 Wiltshire Boulevard Niagara Falls, Ontario

$799,888
5 Beds
  3 Full

PROPERTY INFO

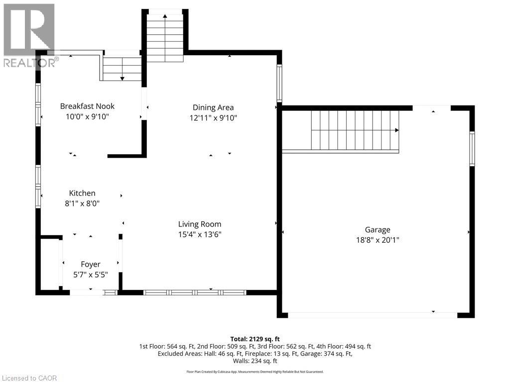
Welcome to this extensively updated backsplit, perfectly situated in the highly desirable Rolling Acres community in Niagara Falls. Offering a fantastic combination of modern updates, versatile living space, and an unbeatable location, this home is ideal for growing families and multi-generational living alike. The exterior has been thoughtfully refreshed with major upgrades including a new roof (2024), new siding (2024), and a covered awning updated in 2024, enhancing both curb appeal and durability. Inside, you’re greeted by a bright and airy main level with an open-concept design, featuring a generous living and dining area that seamlessly connects to a stylish, updated kitchen complete with contemporary finishes, quality flooring, and California shutters. Overlooking the kitchen is a warm and inviting family room, highlighted by a large sun-filled window and a cozy gas fireplace—perfect for relaxing or hosting guests. The upper level offers three well-sized bedrooms and a full bathroom, providing comfortable space for the whole family. On the lower level, you’ll find an additional bedroom, a 3-piece bathroom, laundry area, and a walk-up to the backyard, where a covered patio creates the perfect setting for outdoor entertaining. The fully finished basement adds even more flexibility, featuring separate access from both the garage and basement, a kitchenette, another bedroom, full bath, laundry space equipped with washer and dryer and additional living space—ideal for an in-law suite, extended family, or potential income opportunity. Located in a sought-after, family-friendly neighbourhood, this home is just minutes from highways, parks, schools, and all essential amenities. With countless updates already completed and so much space to enjoy, this is a rare opportunity you won’t want to miss! (id:4555)

PROPERTY SPECS

Price $799,888
City Niagara Falls, Ontario
Bed / Bath 5 / 3 Full
Address 3327 WILTSHIRE Boulevard
Listing ID 40813779
Style House
Parking 4.00
Type Residential
Status For Sale

EXTENDED FEATURES

Subtype Single Family Community Features Quiet Area Features Automatic Garage Door Opener Ownership Freehold Basement Finished, Full Heating / Cooling Forced air, Natural gas Sewer Municipal sewage system Parking 4.00



team photo
Windsor: 519-903-9355
Toronto: 905-220-7333
Office: 905-335-3042

REQUEST MORE INFORMATION

Grocery Stores
Schools
Restaurants
Gas Stations
Banks
Parks
Transit
Police
Fire Station
Place of Worship
Please select an amenity above to view a list.





team photo

Connect with Us

Loading...