Skip the navigation and jump to this page's content.

2 Alderson Court Unit# 5 New Tecumseth, Ontario

PROPERTY INFO

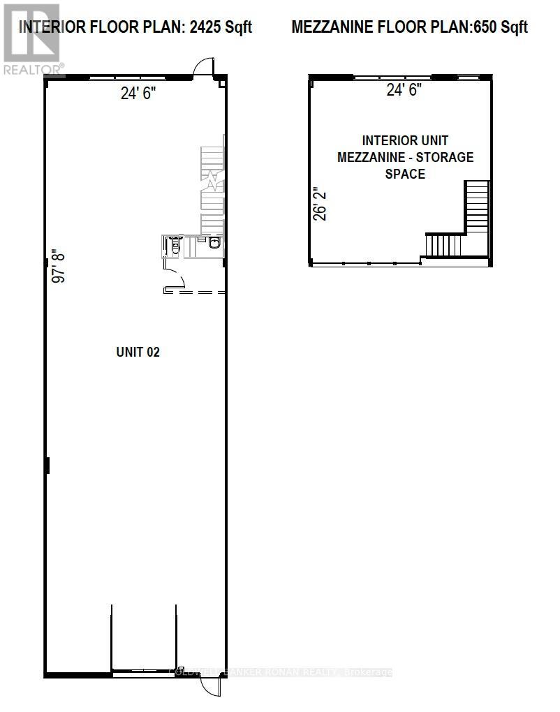
Elevate Your Business With Alliston's New Premier Industrial-Office Opportunity Unlock the potential of your business in one of Alliston's fastest-growing employment districts. Whether you are looking to expand or establish a new flagship location, 2 Alderson Court offers an exceptional opportunity to lease modern, new-construction units designed for high-performance businesses. Position your team in a high-exposure hub just minutes from the Honda Manufacturing facility and Highway 89, offering seamless connectivity within a rapidly growing business park. These modern industrial units feature versatile layouts from 2,425 to 3,075 SF, boasting 22 ft clear heights and massive 10' x 14' rear drive-in doors for maximum logistical efficiency. Each space is built for performance with energy-efficient systems, ample parking, and a 650 SF light-filled mezzanine perfect for office or storage use. Zoned EA2-13, it supports a wide range of uses, including office, light manufacturing, contractor services, and research and development, making it a versatile and attractive option. (id:4555)

PROPERTY SPECS

Lease $18
City New Tecumseth, Ontario
Address 2 Alderson Court Unit# 5
Listing ID N13022298
Style Multi-Tenant Industrial
Type Industrial/Commercial
Status For Lease

EXTENDED FEATURES

Subtype Industrial Ownership Leasehold Heating / Cooling Forced air, Natural gas



team photo
Windsor: 519-903-9355
Toronto: 905-220-7333
Office: 905-335-3042

REQUEST MORE INFORMATION

Grocery Stores
Schools
Restaurants
Gas Stations
Banks
Parks
Transit
Police
Fire Station
Place of Worship
Please select an amenity above to view a list.





team photo

Connect with Us

Loading...