Skip the navigation and jump to this page's content.

846 Chaucer Avenue Mississauga, Ontario

PROPERTY INFO

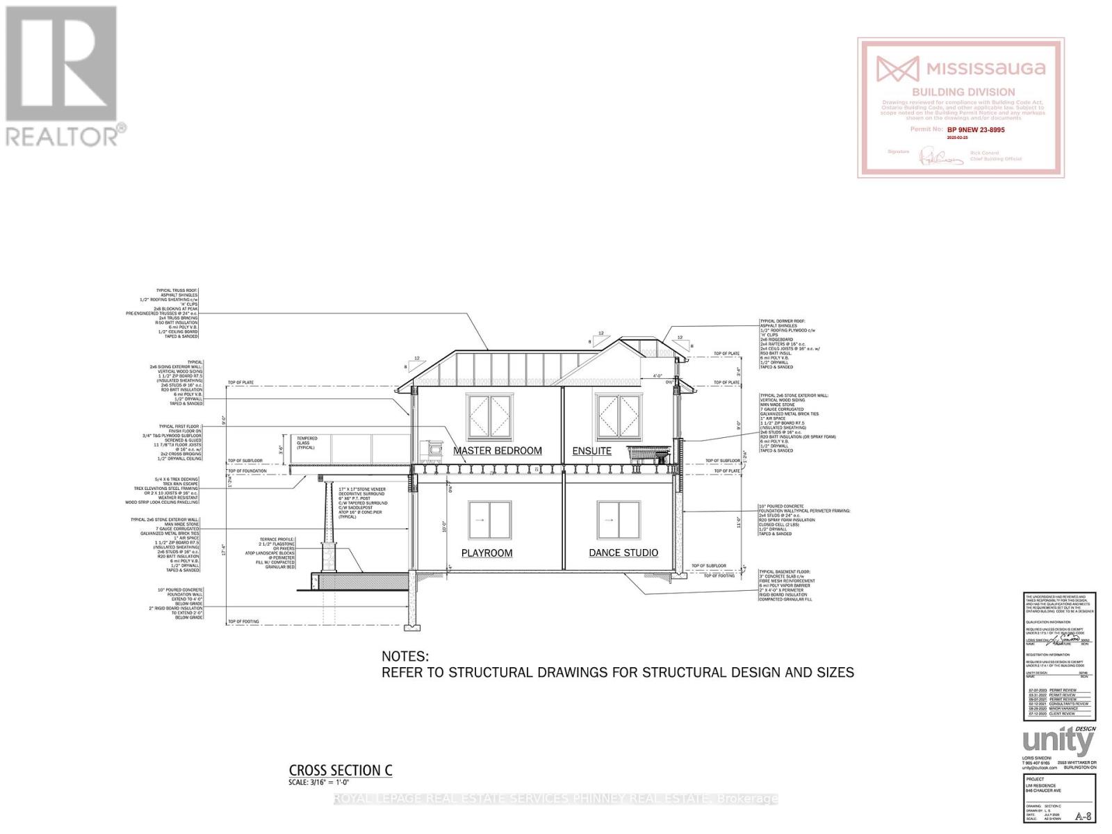
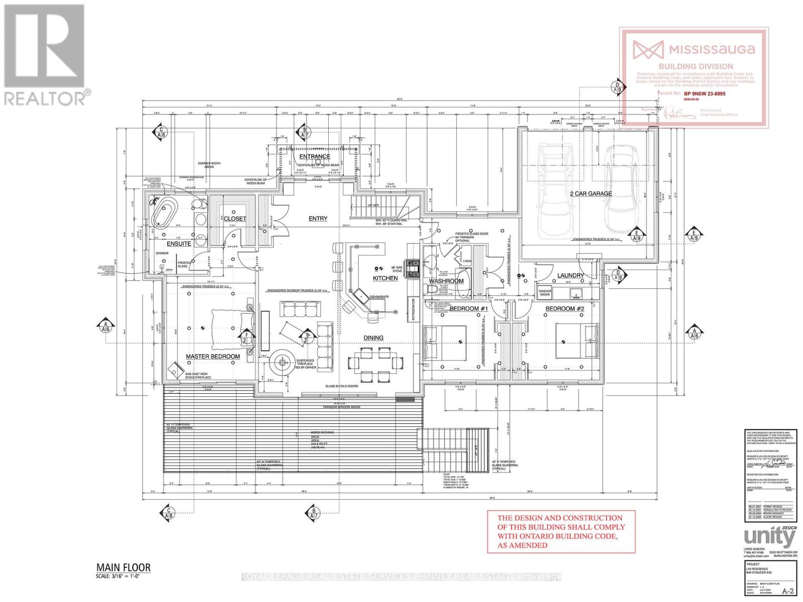
Approved plans and permits in place for a luxurious 4,000 sq. ft. masterpiece, complete with a grand deck overlooking the peaceful ravine and a seamless walkout to your own private oasis, this is a canvas for ultimate elegance and relaxation. Development charges have been paid. This expansive 100 ft lot offers unparalleled privacy, surrounded by nature's beauty. Fantastic opportunity to create your personal sanctuary in the highly coveted Lorne Park Estates, one of the most prestigious neighborhoods in the city. Lorne Park Estates offers a private beach, tennis court, playground, trails and preserves the natural elements of this community. Imagine your dream residence nestled on a serene cul-de-sac, with stunning views of a tranquil ravine and direct beach access. Located within the renowned Lorne Park School District and just moments from the scenic Waterfront Trail and Jack Darling Park, this is not just a home, it's a lifestyle. (id:4555)

PROPERTY SPECS

Price $1,750,000
City Mississauga, Ontario
Address 846 Chaucer Avenue
Listing ID W13019966
Type Vacant Land
Status For Sale

EXTENDED FEATURES

Features Cul-de-sac, Wooded area, Irregular lot size, Conservation/green belt Ownership Freehold



team photo
Windsor: 519-903-9355
Toronto: 905-220-7333
Office: 905-335-3042

REQUEST MORE INFORMATION

Grocery Stores
Schools
Restaurants
Gas Stations
Banks
Parks
Transit
Police
Fire Station
Place of Worship
Please select an amenity above to view a list.





team photo

Connect with Us

Loading...