Skip the navigation and jump to this page's content.

5155 Spectrum Way Unit# 25 Mississauga, Ontario

PROPERTY INFO

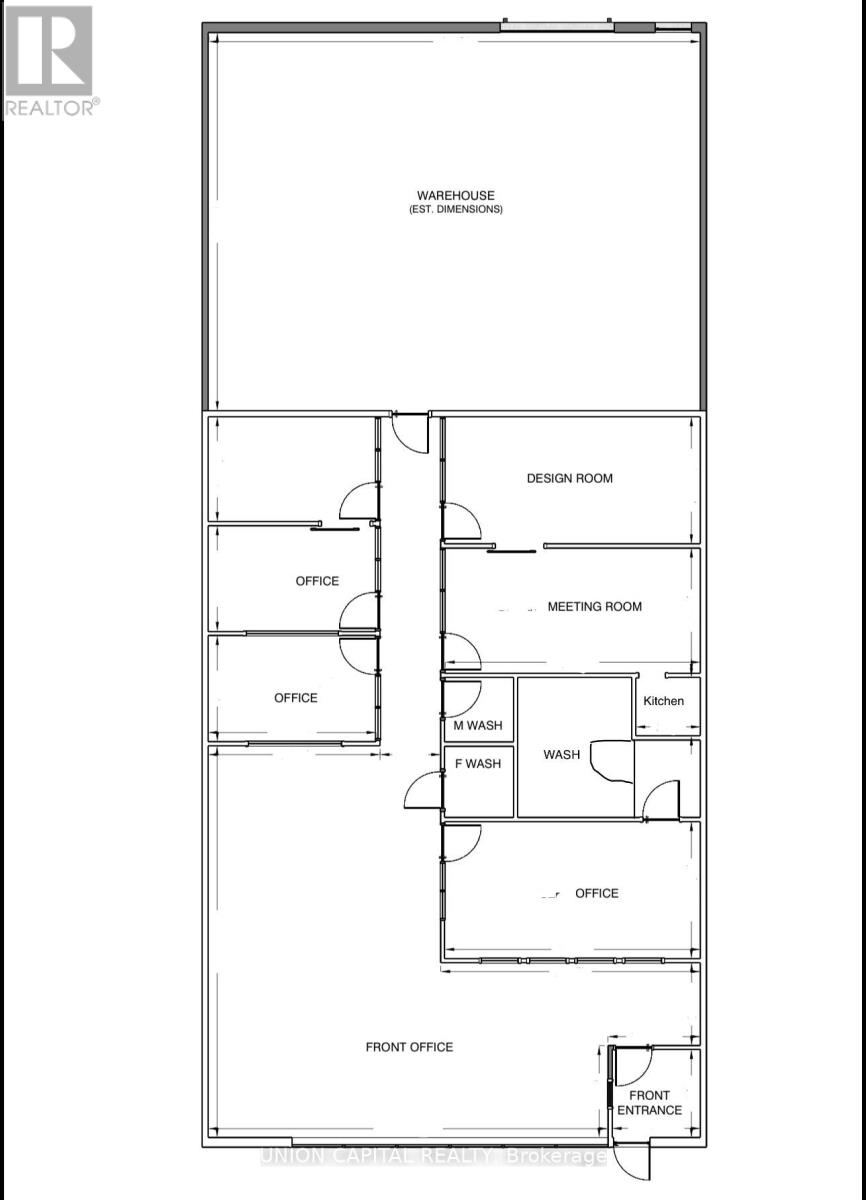
A rare opportunity to secure a freestanding commercial unit in a prime Mississauga location near the airport. Unit 25 stands out with its expansive warehouse space, soaring ceilings, and advanced high-tech security system-features seldom found in today's market. Fully renovated from top to bottom, the unit offers a modern, turnkey environment suitable for a wide range of business uses. The open layout is enhanced by generous ceiling heights, creating a bright and spacious atmosphere with excellent functional flexibility. Designed with accessibility in mind, the unit includes wide entryways to accommodate all users. A brand-new kitchen provides added convenience for staff, while premium flooring and energy-efficient lighting elevate the overall finish. The rear warehouse area is equipped with oversized doors for seamless truck access, making logistics and operations highly efficient. Additional features include automated window blinds and two newly installed EV chargers at the rear of the unit, offering added convenience and future-ready infrastructure. Freestanding units of this caliber are rarely offered-an outstanding opportunity for businesses seeking space, security, and a top-tier location. (id:4555)

PROPERTY SPECS

Price $2,750,000
City Mississauga, Ontario
Address 5155 Spectrum Way Unit# 25
Listing ID W12917004
Square Footage 3980
Style Offices
Type Industrial/Commercial
Status For Sale

EXTENDED FEATURES

Subtype Office Ownership Freehold Heating / Cooling Forced air, Natural gas



team photo
Windsor: 519-903-9355
Toronto: 905-220-7333
Office: 905-335-3042

REQUEST MORE INFORMATION

Grocery Stores
Schools
Restaurants
Gas Stations
Banks
Parks
Transit
Police
Fire Station
Place of Worship
Please select an amenity above to view a list.





team photo

Connect with Us

Loading...