Skip the navigation and jump to this page's content.

723 Lakeshore Road Mississauga, Ontario

PROPERTY INFO

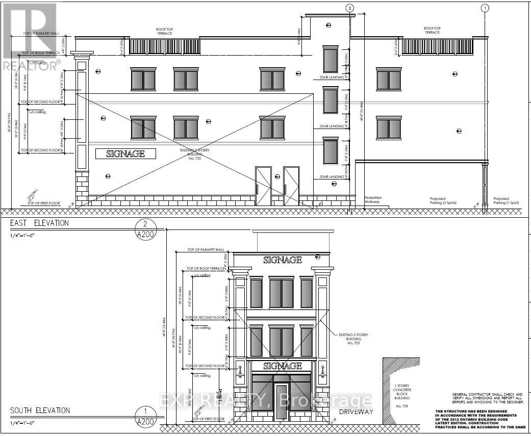
Shovel-ready mixed-use redevelopment opportunity along the Lakeshore corridor. The existing two-storey building features one retail unit and one residential apartment, offering holding income with clear upside. The property is fully approved to add a third storey and convert to six residential units plus one retail space. Zoning by-law approval, site plan approval, and architectural drawings are all complete. A new owner can pull permits and proceed directly to construction. Further value is created through reduced development charges from the City of Mississauga, available until November 2026, enhancing overall project economics. (id:4555)

PROPERTY SPECS

Price $1,245,000
City Mississauga, Ontario
Address 723 Lakeshore Road
Listing ID W12748344
Style Multi-Family
Parking 4.00
Land Size 2000
Type Multi-Family
Status For Sale

EXTENDED FEATURES

Ownership Freehold Heating / Cooling Forced air, Natural gas Parking 4.00



team photo
Windsor: 519-903-9355
Toronto: 905-220-7333
Office: 905-335-3042

REQUEST MORE INFORMATION

Grocery Stores
Schools
Restaurants
Gas Stations
Banks
Parks
Transit
Police
Fire Station
Place of Worship
Please select an amenity above to view a list.





team photo

Connect with Us

Loading...