Skip the navigation and jump to this page's content.

7575 Kimbel Street Unit# 1-2 Mississauga, Ontario

PROPERTY INFO

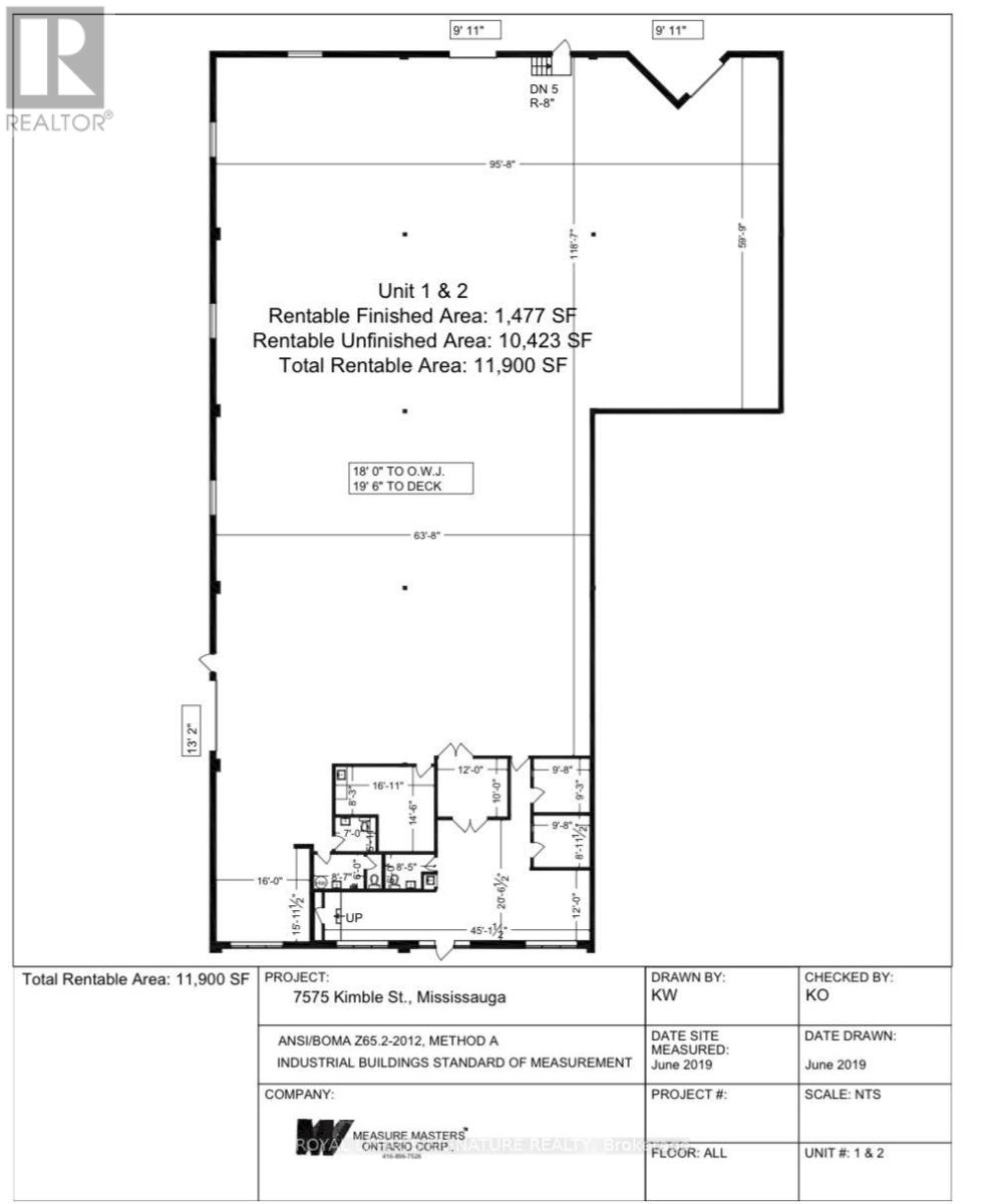
Functional 11,900 sq ft industrial space comprised of 10,423 sq ft of warehouse, 1,477 sq ft of office,with 2 dock doors, 1 drive-in door and a shipping yard accommodating 53 ft trailers. Desirable E3 zoning and prime location on north end of Pearson Airport. Convenient location with easy access to 410, 427,401. (id:4555)

PROPERTY SPECS

Lease $17
City Mississauga, Ontario
Address 7575 Kimbel Street Unit# 1-2
Listing ID W12671672
Style Warehouse
Type Industrial/Commercial
Status For Lease

EXTENDED FEATURES

Subtype Industrial Ownership Leasehold Heating / Cooling Coil Fan



team photo
Windsor: 519-903-9355
Toronto: 905-220-7333
Office: 905-335-3042

REQUEST MORE INFORMATION

Grocery Stores
Schools
Restaurants
Gas Stations
Banks
Parks
Transit
Police
Fire Station
Place of Worship
Please select an amenity above to view a list.





team photo

Connect with Us

Loading...