Skip the navigation and jump to this page's content.

1710 Carrington Road Unit# Lot 3 Mississauga, Ontario

PROPERTY INFO

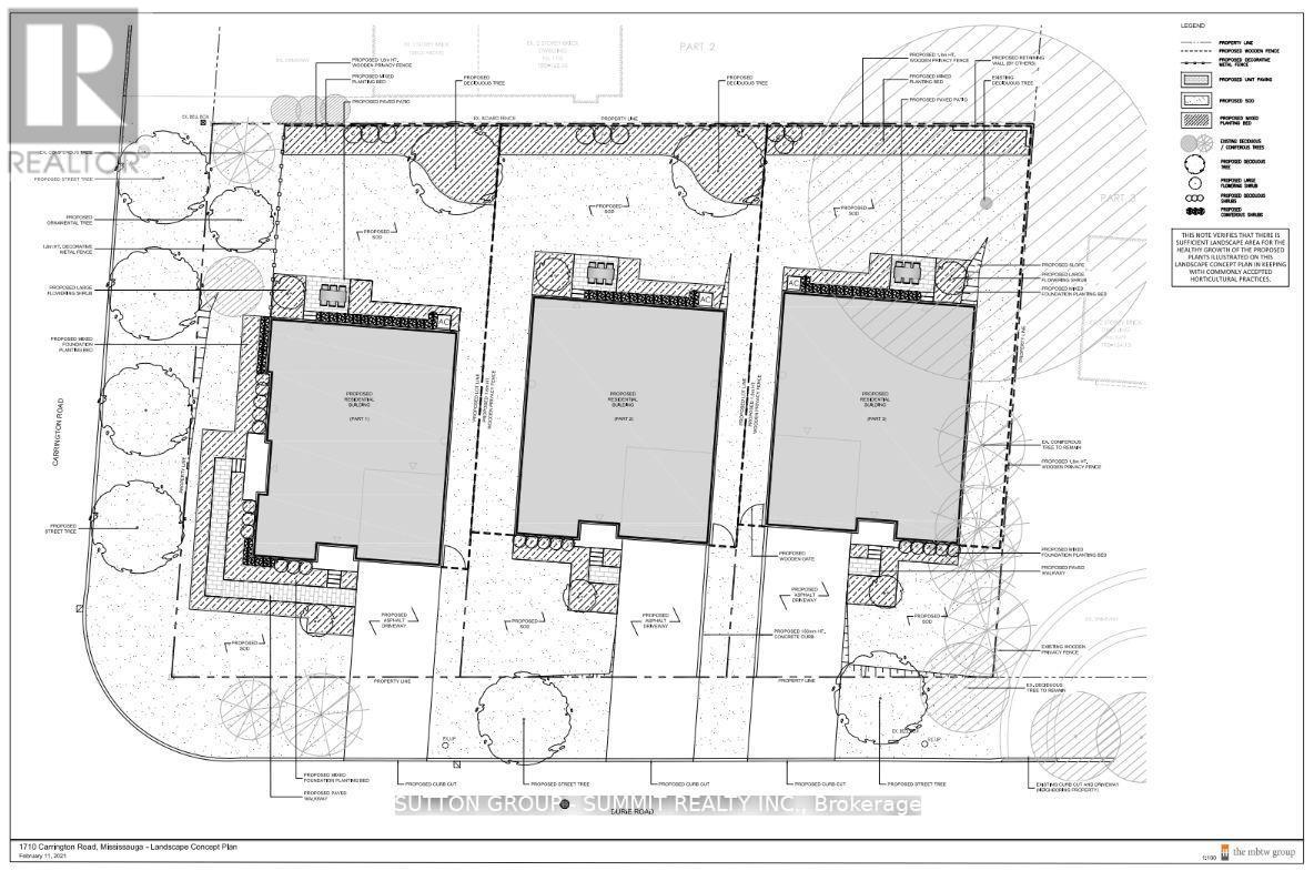
Attention All Builders and investors, this Executive 60-by-125-foot lot (Severed Lot) is in the Prestigious Area Of East Credit. Build Your Dream Home. Short Walk To Streetsville, Restaurants, And Shops.It has also been approved for 2-30 ft semi lots as it meets the new Mississauga city bbylaws. (id:4555)

PROPERTY SPECS

Price $1,198,900
City Mississauga, Ontario
Address 1710 CARRINGTON Road Unit# LOT 3
Listing ID W12524746
Type Vacant Land
Status For Sale

EXTENDED FEATURES

Features Flat site Ownership Freehold



team photo
Windsor: 519-903-9355
Toronto: 905-220-7333
Office: 905-335-3042

REQUEST MORE INFORMATION

Grocery Stores
Schools
Restaurants
Gas Stations
Banks
Parks
Transit
Police
Fire Station
Place of Worship
Please select an amenity above to view a list.





team photo

Connect with Us

Loading...