Skip the navigation and jump to this page's content.

1710 Carrington Road Unit# Lot 3-r Mississauga, Ontario

PROPERTY INFO

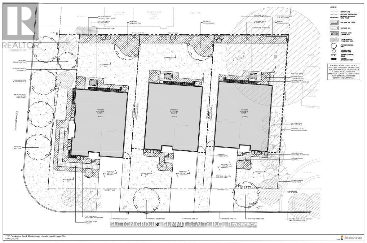
Attention All Builders and investors, this Executive 30-by-125-foot lot (Severed Lot) is in the Prestigious Area Of East Credit. Build Your Dream Home. Short Walk To Streetsville, Restaurants, And Shops.One of six approved 30 ft semi lots as it meets the new Mississauga city bylaws. (id:4555)

PROPERTY SPECS

Price $599,980
City Mississauga, Ontario
Address 1710 CARRINGTON Road Unit# LOT 3-R
Listing ID W12524742
Type Vacant Land
Status For Sale

EXTENDED FEATURES

Features Flat site Ownership Freehold



team photo
Windsor: 519-903-9355
Toronto: 905-220-7333
Office: 905-335-3042

REQUEST MORE INFORMATION

Grocery Stores
Schools
Restaurants
Gas Stations
Banks
Parks
Transit
Police
Fire Station
Place of Worship
Please select an amenity above to view a list.





team photo

Connect with Us

Loading...