Skip the navigation and jump to this page's content.

459 Main Street Unit# 3 Milton, Ontario

$3,800
  2 Full

PROPERTY INFO

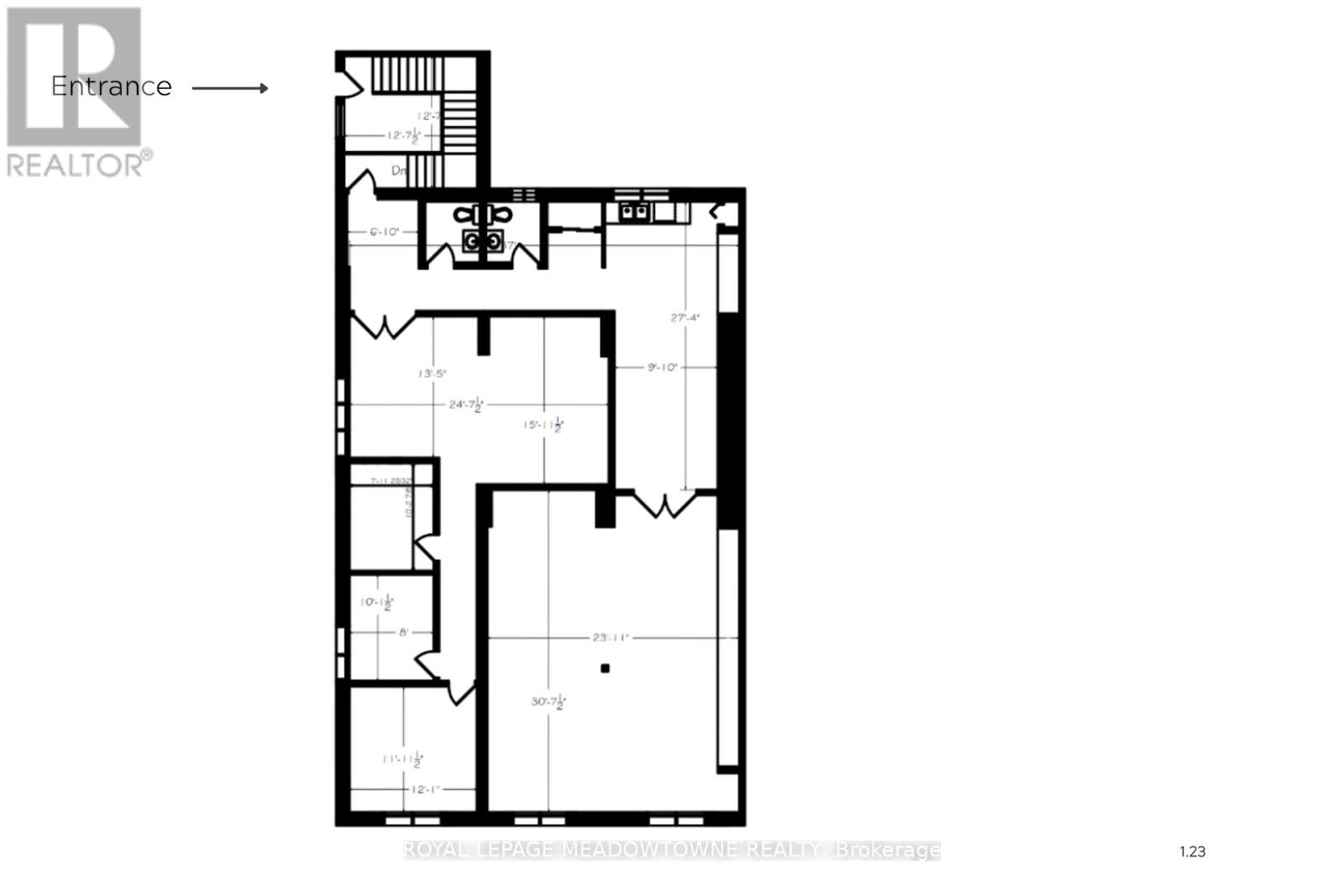
Rare opportunity to have the FULL second-floor corner unit at the corner of Main Street & Ontario Street in Milton, offering strong visibility, easy access, and private entrance. A great fit for professional office users such as legal, property management, lending, mortgage, or insurance. The building is anchored by Royal LePage Meadowtowne Realty, a long-established residential and commercial brokerage. The space is a bright 2,415 SF corner unit with lots of natural light and an open layout that can stay as-is or be reworked if needed. It currently includes a private stairwell entrance, kitchenette, men's and women's washrooms, a meeting room, reception area, and three offices. The landlord is open to discussing layout changes. Quick possession is available. (id:4555)

PROPERTY SPECS

Lease $3,800
City Milton, Ontario
Bath 2 Full
Address 459 Main Street Unit# 3
Listing ID W12646274
Style Offices
Land Size 0.84
Type Industrial/Commercial
Status For Lease

EXTENDED FEATURES

Subtype Office Ownership Leasehold Heating / Cooling Other



team photo
Windsor: 519-903-9355
Toronto: 905-220-7333
Office: 905-335-3042

REQUEST MORE INFORMATION

Grocery Stores
Schools
Restaurants
Gas Stations
Banks
Parks
Transit
Police
Fire Station
Place of Worship
Please select an amenity above to view a list.





team photo

Connect with Us

Loading...