Skip the navigation and jump to this page's content.

328 Cedar Avenue Meaford, Ontario

$3,750
3 Beds
  2 Full

PROPERTY INFO

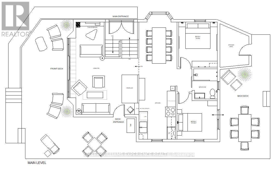
***SKI SEASON RENTAL***Charming seasonal retreat perfectly situated minutes from Meaford's shops, trails, and the world-class ski clubs of Georgian Bay. This cozy getaway is designed for comfort, featuring warm, inviting living spaces, modern amenities, and a private hot tub. It's the ideal spot to unwind after a day on the slopes. Enjoy a well-equipped kitchen, spacious bedrooms, ample parking, and a layout that's perfect for families or couple's seeking a relaxing winter escape. With its serene setting, thoughtful updates, and close proximity to skiing, dining, and waterfront views, this home offers the perfect base for a memorable seasonal stay. (id:4555)

PROPERTY SPECS

Lease $3,750
City Meaford, Ontario
Bed / Bath 3 / 2 Full
Address 328 Cedar Avenue
Listing ID X12628530
Style Raised bungalow, House
Fireplace 2.00
Parking 6.00
Type Residential
Status For Lease

EXTENDED FEATURES

Subtype Single Family Features Wooded area, Carpet Free Ownership Freehold Views Lake view Basement Finished, Full Heating / Cooling Forced air, Propane Sewer Septic System Parking 6.00



team photo
Windsor: 519-903-9355
Toronto: 905-220-7333
Office: 905-335-3042

REQUEST MORE INFORMATION

Grocery Stores
Schools
Restaurants
Gas Stations
Banks
Parks
Transit
Police
Fire Station
Place of Worship
Please select an amenity above to view a list.





team photo

Connect with Us

Loading...