Skip the navigation and jump to this page's content.

175 Bayview Fairways Drive Markham, Ontario

$4,950
3 Beds
  3 Full / 1 Half

PROPERTY INFO

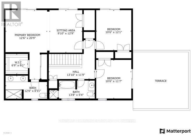
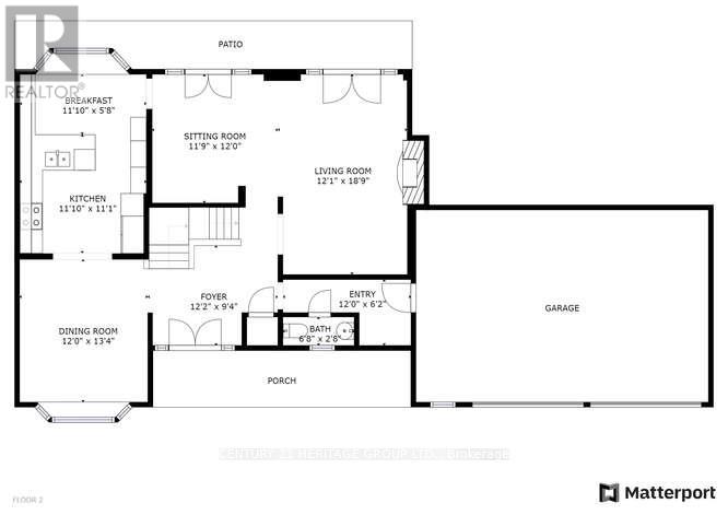
Totally renovated executive home offering 2,101 sq ft of total living space (as per MPAC) on an approx. 85-ft frontage, backing directly onto the prestigious Bayview Golf Course, Convenient location near shops, schools, and transit. Well-kept interior and exterior.4 bedrooms currently converted to 3, with a massive primary bedroom offering three large closets. Additional bedrooms feature walkouts.The Location: You really can't beat this spot for convenience and school rankings: Schools:Located in the catchment for some of the best schools in Ontario: Bayview Fairway P.S. (Ranked#1), St. Robert CHS (Ranked #1), and Thornlea S.S. (Ranked #23). Commuting: Super close to Hwy 407 and 404. A 10-minute walk gets you to public transit. Daily Errands: A 5-minute drive to the Thornhill Community Centre, Library, Food Basics, Shoppers, and local restaurants. (id:4555)

PROPERTY SPECS

Lease $4,950
City Markham, Ontario
Bed / Bath 3 / 3 Full, 1 Half
Address 175 Bayview Fairways Drive
Listing ID N12676724
Style House
Flooring Hardwood
Parking 3.00
Type Residential
Status For Lease

EXTENDED FEATURES

Subtype Single Family Features Cul-de-sac, Carpet Free Ownership Freehold Basement None Heating / Cooling Forced air, Natural gas Sewer Sanitary sewer Parking 3.00



team photo
Windsor: 519-903-9355
Toronto: 905-220-7333
Office: 905-335-3042

REQUEST MORE INFORMATION

Grocery Stores
Schools
Restaurants
Gas Stations
Banks
Parks
Transit
Police
Fire Station
Place of Worship
Please select an amenity above to view a list.





team photo

Connect with Us

Loading...