Skip the navigation and jump to this page's content.

197 Cachet Woods Court Unit# 108 & 109 Markham, Ontario

PROPERTY INFO

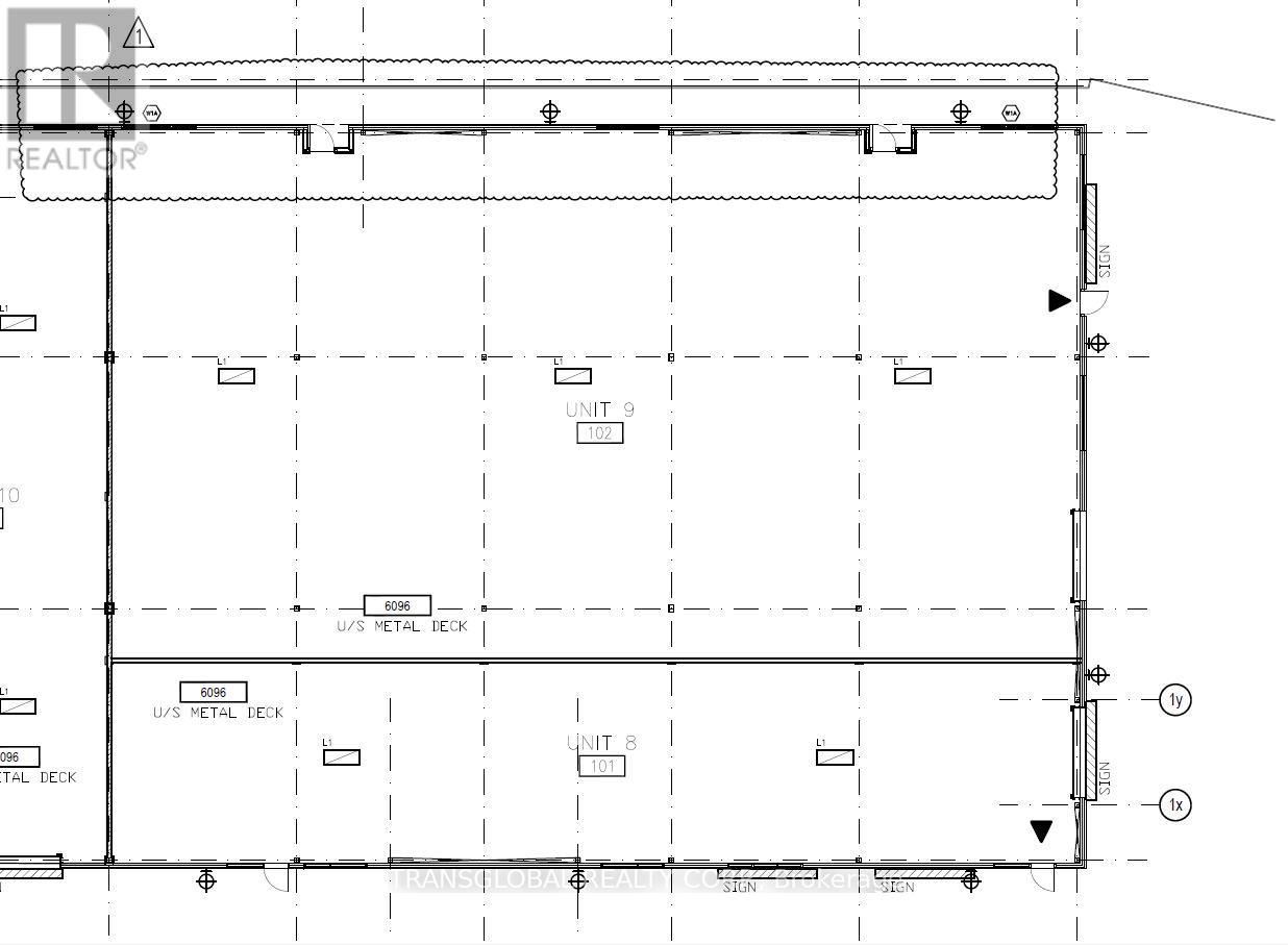
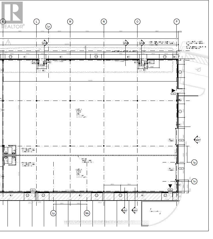
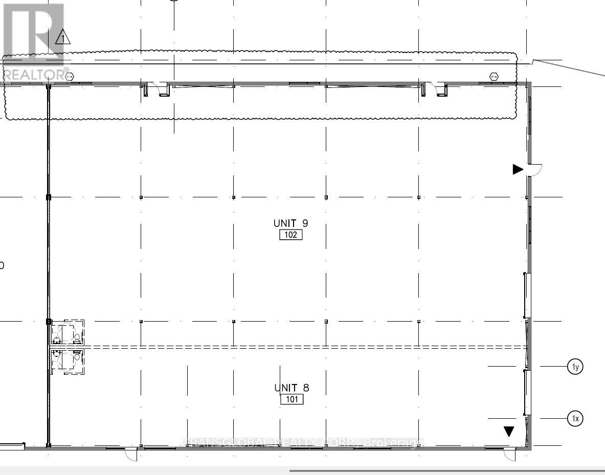
Excellent Location! Central Markham! Salford Business Campus! Cachet WOODS Court! Close to highways 404 and Woodbine Ave, highway 407. Beautiful surroundings with greenbelt and Rouge River. Rare opportunity to lease Brand new Industrial unit of 12,883.50 SqFt With Very High ceiling (height 22.5'). Two drive-in doors 12'x 12'. Space can be divided into two separate smaller units of 9,278.50 Sqft and 3,605 SqFt. (id:4555)

PROPERTY SPECS

Lease $25
City Markham, Ontario
Address 197 Cachet Woods Court Unit# 108 & 109
Listing ID N12478906
Style Warehouse
Type Industrial/Commercial
Status For Lease

EXTENDED FEATURES

Subtype Industrial Features Conservation/green belt Ownership Leasehold Heating / Cooling Radiant heat



team photo
Windsor: 519-903-9355
Toronto: 905-220-7333
Office: 905-335-3042

REQUEST MORE INFORMATION

Grocery Stores
Schools
Restaurants
Gas Stations
Banks
Parks
Transit
Police
Fire Station
Place of Worship
Please select an amenity above to view a list.





team photo

Connect with Us

Loading...