Skip the navigation and jump to this page's content.

82 Base Line Road London, Ontario

PROPERTY INFO

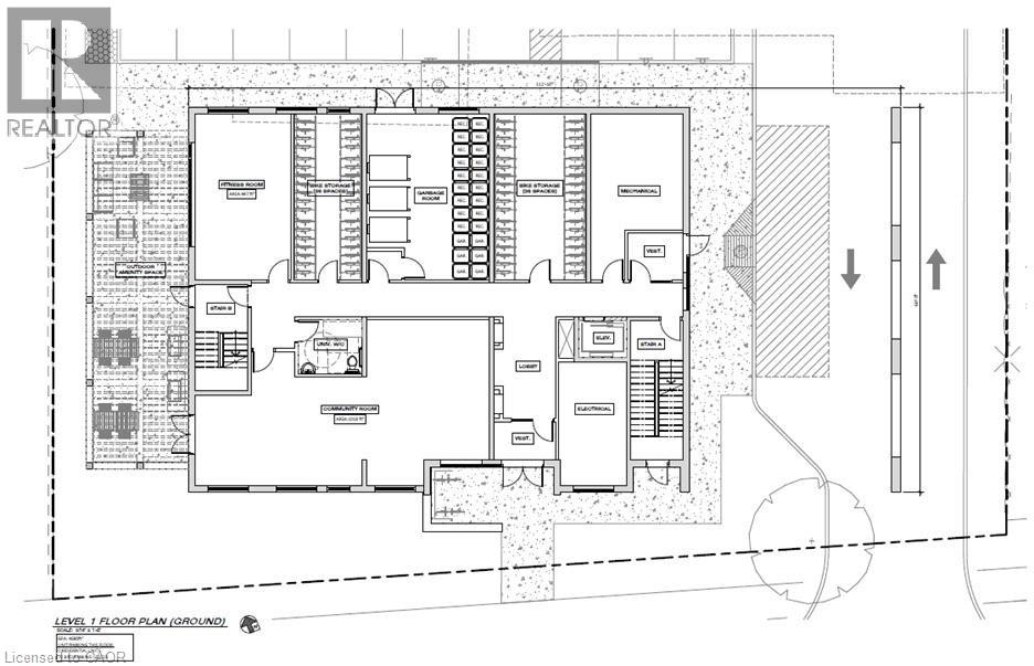
Opportunity knocks. Currently configured as four units converted from a single-family home and zoned R9-7, this property offers exceptional redevelopment and value-add potential. This prime multi-residential development site presents a rare and flexible acquisition opportunity for qualified buyers. The half-acre site is fully rezoned for an 8-storey, 77-unit apartment building, allowing the next owner to proceed directly to the draft Site Plan Approval (SPA) phase, while the existing tenancy provides interim income to help offset holding costs. Ideally located steps from Wortley Village in London, the property benefits from excellent access to transit, shops, restaurants, and green space, making it highly attractive to future renters. Existing zoning permits up to 12 storeys with potential for additional density through underground parking, and there is also the ability to develop 10-plex buildings depending on the buyer’s strategy. This property must be sold together with the neighbouring bungalow at 80 Baseline Road, creating a larger development assembly and enhancing overall redevelopment potential, making this a rare near-turnkey opportunity in a high-demand location with multiple exit strategies. (id:4555)

PROPERTY SPECS

Price $800,000
City London, Ontario
Address 82 BASE LINE Road
Listing ID 40808798
Style Fourplex
Parking 5.00
Type Multi-Family
Status For Sale

EXTENDED FEATURES

Community Features Quiet Area, School Bus Features Crushed stone driveway Ownership Freehold Basement Unfinished, Partial Heating / Cooling Forced air, Natural gas Sewer Municipal sewage system Parking 5.00



team photo
Windsor: 519-903-9355
Toronto: 905-220-7333
Office: 905-335-3042

REQUEST MORE INFORMATION

Grocery Stores
Schools
Restaurants
Gas Stations
Banks
Parks
Transit
Police
Fire Station
Place of Worship
Please select an amenity above to view a list.





team photo

Connect with Us

Loading...