Skip the navigation and jump to this page's content.

80 Base Line Road London, Ontario

PROPERTY INFO

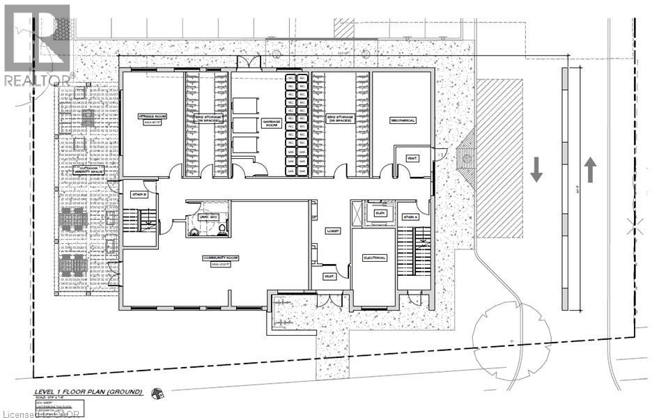
DEVELOPMENT OPPORTUNITY – PRIME MULTI-RESIDENTIAL SITE An exceptional opportunity to acquire a prime multi-residential development site in one of London’s most desirable neighbourhoods. This half-acre property is fully rezoned for an 8-storey, 77-unit apartment building, allowing the next owner to proceed directly to the draft Site Plan Approval (SPA) phase. The site is currently tenanted, generating interim income to help offset holding costs, and is located just steps from Wortley Village with convenient access to transit, shops, restaurants, and green space, making it highly attractive to future renters. Existing zoning permits up to 12 storeys, with potential for additional density through underground parking, presenting a rare near–turnkey development opportunity in a high-demand rental market. (id:4555)

PROPERTY SPECS

Price $1,600,000
City London, Ontario
Address 80 BASE LINE Road
Listing ID 40808793
Land Size 0.492
Type Vacant Land
Status For Sale

EXTENDED FEATURES

Features Country residential Ownership Freehold Basement None Sewer Municipal sewage system



team photo
Windsor: 519-903-9355
Toronto: 905-220-7333
Office: 905-335-3042

REQUEST MORE INFORMATION

Grocery Stores
Schools
Restaurants
Gas Stations
Banks
Parks
Transit
Police
Fire Station
Place of Worship
Please select an amenity above to view a list.





team photo

Connect with Us

Loading...