Skip the navigation and jump to this page's content.

Lot 2 Tenth Street LaSalle, Ontario

$1,150,000
6 Beds
  4 Full
Virtual Tour

PROPERTY INFO

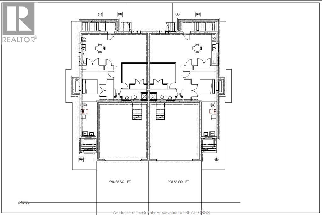
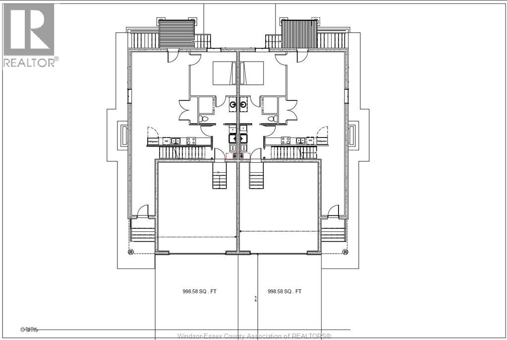
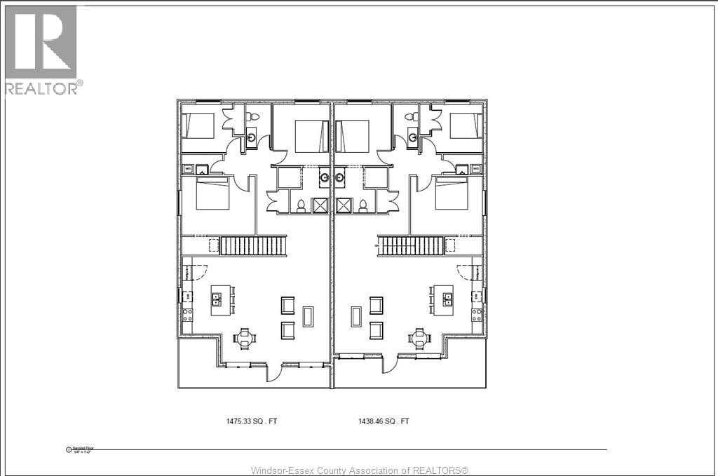
Multi-Generational Living | Net Zero Ready Solar Optional | Income Potential. SAVE UP TO $130,000 ON YOUR NEW HOME! TO BE BUILT HOME Experience modern luxury in the heart of LaSalle with approx. 3,500 sq.ft. Living space this home is designed for today’s evolving families. Built with premium ICF construction, this property delivers superior soundproofing, durability, exceptional energy efficiency—offering lower utility costs for long-term value. Featuring 6 bedrooms, 4 full baths, 3 kitchens,3 laundry, 2 car garage. This home is perfectly configured for multi-family living with privacy. The innovative 3-in-1 layout includes a main floor 1-bed suite, spacious 3-bed upper level, and a fully self-contained legal 2-bedroom ADU w/separate entrance—ideal for rental income or extended family. Bright open spaces, high ceilings, double car insulated garage. PLEASE NOTE :** CURRENT PRICING NOW REFLECTS THE ONTARIO GOVERNMENTS FULL ** HST REBATE **Contact Listing Agent directly for more information and promotions today!! (id:4555)

PROPERTY SPECS

Price $1,150,000
City LaSalle, Ontario
Bed / Bath 6 / 4 Full
Address LOT 2 TENTH Street
Listing ID 26007729
Style House
Flooring Cushion/Lino/Vinyl
Type Residential
Status For Sale

EXTENDED FEATURES

Subtype Single Family Features Double width or more driveway, Concrete Driveway, Finished Driveway, Front Driveway Ownership Freehold Heating / Cooling Heat Pump, Heat Recovery Ventilation (HRV), Electric, Solar



team photo
Windsor: 519-903-9355
Toronto: 905-220-7333
Office: 905-335-3042

REQUEST MORE INFORMATION

Grocery Stores
Schools
Restaurants
Gas Stations
Banks
Parks
Transit
Police
Fire Station
Place of Worship
Please select an amenity above to view a list.





team photo

Connect with Us

Loading...