Skip the navigation and jump to this page's content.

3570 Oke Drive LaSalle, Ontario

$1,560,900
4 Beds
  3 Full

PROPERTY INFO

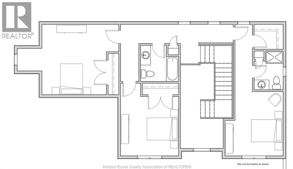
Welcome to Oke Drive in Villa Oaks Estates, LaSalle's newest and prestigious development. Renowned luxury builder, Wescon Builders, is here to bring you an elevated living experience! With much consideration and careful planning, it is our pleasure to bring you this sprawling 2 Sty on an Executive size lot, featuring 4 bdrms, 3.5 baths, main floor primary suite & 2nd floor junior suite, 8' interior doors, to name a few. A blend of thoughtful design, sleek lines, and the highest-quality materials & finishes that give it its lavish charm further boasting its captivating appeal. While embracing modern design principles, it exudes a timeless elegance that will transcend trends. It will remain a symbol of luxury and sophistication for years to come. Opt for a completed lower level, with or without our optional in-law suite & grade entrance, and maximize your living experience to over 5300sf of finished living space. Inquire today for more info, model, lot, & build-to-suit options. (id:4555)

PROPERTY SPECS

Price $1,560,900
City LaSalle, Ontario
Bed / Bath 4 / 3 Full
Address 3570 Oke Drive
Listing ID 25031868
Style House
Flooring Hardwood, Ceramic/Porcelain
Fireplace 1.00
Type Residential
Status For Sale

EXTENDED FEATURES

Subtype Single Family Features Double width or more driveway, Front Driveway Ownership Freehold Heating / Cooling Forced air, Heat Recovery Ventilation (HRV), Natural gas, Furnace



team photo
Windsor: 519-903-9355
Toronto: 905-220-7333
Office: 905-335-3042

REQUEST MORE INFORMATION

Grocery Stores
Schools
Restaurants
Gas Stations
Banks
Parks
Transit
Police
Fire Station
Place of Worship
Please select an amenity above to view a list.





team photo

Connect with Us

Loading...