Skip the navigation and jump to this page's content.

728 Brownstone Drive Unit# 403 Lakeshore, Ontario

$479,000
2 Beds
  2 Full
Virtual Tour

PROPERTY INFO

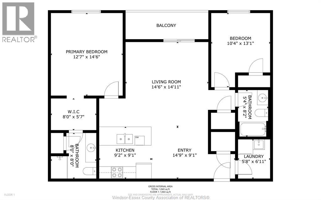
Location Location Location! Welcome to 728 Brownstone Dr. Unit 403. Beautiful 1185sf. 2 bed, 2 bath, corner unit Condo at Beachside-Lakeshore. Built in 2022 with a modern open concept design, 9' ceilings, lots of natural light, gorgeous kitchen with quartz counters and stainless appliances, primary bedroom with ensuite and glass/tile shower, in-suite laundry and spacious balcony to enjoy the outdoor fresh air. This unit has been freshly painted and is ready for the next owner to make it their home. Amenities include party room, pickleball courts, outdoor pavilion, dog run and community garden. Perfect St. Clair Beach location where you can walk to shops, pharmacies, grocery stores, restaurants, LCBO, the beautiful waterfront at Lakewood Park, plus easy commuting with quick access to EC Row Expressway and the 401. Call today for your personal tour. (id:4555)

PROPERTY SPECS

Price $479,000
City Lakeshore, Ontario
Bed / Bath 2 / 2 Full
Address 728 BROWNSTONE Drive Unit# 403
Listing ID 26006079
Style Apartment
Flooring Laminate, Ceramic/Porcelain
Type Condominium
Status For Sale

EXTENDED FEATURES

Subtype Single Family Ownership Freehold Heating / Cooling Forced air, Natural gas, Furnace



team photo
Windsor: 519-903-9355
Toronto: 905-220-7333
Office: 905-335-3042

REQUEST MORE INFORMATION

Grocery Stores
Schools
Restaurants
Gas Stations
Banks
Parks
Transit
Police
Fire Station
Place of Worship
Please select an amenity above to view a list.





team photo

Connect with Us

Loading...