Skip the navigation and jump to this page's content.

439 Alice Avenue Kitchener, Ontario

$514,900
3 Beds
  1 Full

PROPERTY INFO

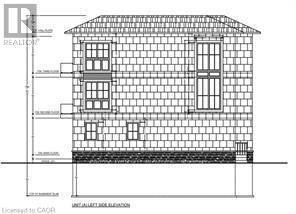
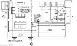
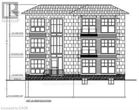
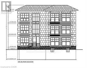
6 UNITS POSSIBLE HERE AS 2 x TRIPLEXES. Approved by the City of Kitchener. Attention developers and investors! 6 units possible here. Redevelopment site for 2 triplex's (built as 2 x semi-detached with 3 units in each - see photo gallery for conceptual rendering). Plans attached as supplement documents. Existing structure is best to be ripped down. This property is brimming with potential-pre-approved by the City of Kitchener for a triplex redevelopment. Situated on a large lot in the heart of Kitchener. The existing home currently offers 3 bedrooms and 1 bathroom, providing a solid foundation for renovation or expansion. Conveniently located near public transit, the LRT, Google, Victoria Park, shopping, and other key amenities, this property presents an incredible opportunity for those looking to invest or undertake a full home renovation. (id:4555)

PROPERTY SPECS

Price $514,900
City Kitchener, Ontario
Bed / Bath 3 / 1 Full
Address 439 ALICE Avenue
Listing ID X12845218
Style House
Parking 3.00
Type Residential
Status For Sale

EXTENDED FEATURES

Subtype Single Family Ownership Freehold Basement Unfinished, N/A Heating / Cooling Not known, Electric, Other Sewer Sanitary sewer Parking 3.00



team photo
Windsor: 519-903-9355
Toronto: 905-220-7333
Office: 905-335-3042

REQUEST MORE INFORMATION

Grocery Stores
Schools
Restaurants
Gas Stations
Banks
Parks
Transit
Police
Fire Station
Place of Worship
Please select an amenity above to view a list.





team photo

Connect with Us

Loading...