Skip the navigation and jump to this page's content.

1430 Highland Road Unit# 7c Kitchener, Ontario

$2,150
2 Beds
  2 Full / 1 Half

PROPERTY INFO

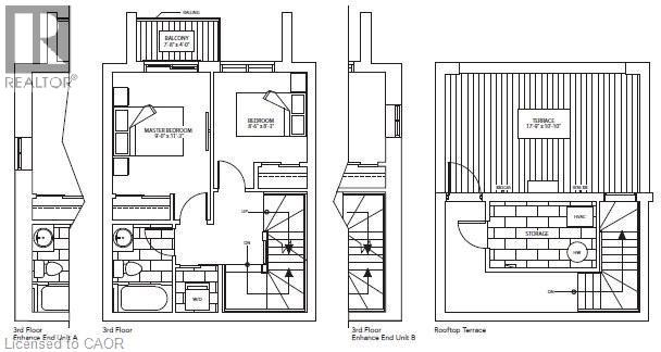
Beautiful 3-Level condo in the highly desirable Highland West neighbourhood of Kitchener! This modern and stylish 2-bed, 2-bath condo offers contemporary living with great convenience and upscale finishes in a vibrant community. Ideal for couples / roommates, a small family, or working professionals. Contact us today to see this rental unit! 2 Bedrooms 2 Bathrooms ( All new finishes) 6 Stainless Steel Appliances (Fridge, Dishwasher, Stove, Microwave, Washer & Dryer) Quartz Countertops In-unit Laundry Smart Ecobee Thermostat Central Heat & A/C New LED lighting throughout Ample Storage 2 Parking Spaces (Both underground - 1 Included, 2nd is additional $150.00 / month) 3 Balconies including Roof Top Terrace Natural Gas line for BBQ Open-concept living and dining area ideal for entertaining Fibre optic internet connection available Storage shed on the rooftop terrace for extra outdoor storage Shopping & Dining: Minutes from The Boardwalk Shopping Centre and a wide variety of restaurants, cafes, and services. Access to parks, walking trails, and greenspace nearby — perfect for outdoor activities and leisure. Transit & Commuting: Quick access to GRT transit routes and major highways including Highway 8 and the 401, making commuting a breeze. Nearby Schools & Amenities: Close to local schools, grocery stores, and community services ** Available NOW! ** *Non-Smoking Unit* *Tenant Insurance is Mandatory and Must be Provided on Move in Day* *Any Unit Listed by KWP That States All Inclusive Will Have a Cap Included* *See sales brochure below for showing instructions* (id:4555)

PROPERTY SPECS

Lease $2,150
City Kitchener, Ontario
Bed / Bath 2 / 2 Full, 1 Half
Address 1430 HIGHLAND Road Unit# 7C
Listing ID 40794285
Style 2 Level, Row / Townhouse
Parking 1.00
Type Condominium
Status For Lease

EXTENDED FEATURES

Subtype Single Family Features Balcony, Paved driveway Ownership Leasehold Basement None Heating / Cooling Forced air, Natural gas Sewer Municipal sewage system Parking 1.00



team photo
Windsor: 519-903-9355
Toronto: 905-220-7333
Office: 905-335-3042

REQUEST MORE INFORMATION

Grocery Stores
Schools
Restaurants
Gas Stations
Banks
Parks
Transit
Police
Fire Station
Place of Worship
Please select an amenity above to view a list.





team photo

Connect with Us

Loading...