Skip the navigation and jump to this page's content.

19 King Street Unit# 2 Kitchener, Ontario

PROPERTY INFO

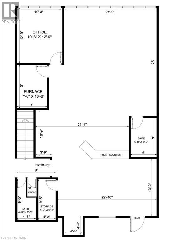
Move-in ready 2nd floor commercial space in the heart of Downtown Kitchener, near King & Queen Street. Spacious open-concept 1,450sqft layout with large windows providing abundant natural light, a bathroom, separate office and lots of storage space. Recent upgrades include roof, fresh paint throughout, and all-new LED lighting. Wired for fibre internet and phone. Ideal for professional or creative office or retail use. Excellent downtown location surrounded by many residential condo units and thousands of employees and great street traffic. Free 2-hour street parking in front of building with additional parking nearby. Steps to LRT stops and all downtown amenities. (id:4555)

PROPERTY SPECS

Lease $3,400
City Kitchener, Ontario
Address 19 KING Street Unit# 2
Listing ID 40779125
Square Footage 1450
Type Industrial/Commercial
Status For Lease

EXTENDED FEATURES

Subtype Retail Community Features High Traffic Area Features Visual exposure Ownership Freehold Basement Full Sewer Municipal sewage system



team photo
Windsor: 519-903-9355
Toronto: 905-220-7333
Office: 905-335-3042

REQUEST MORE INFORMATION

Grocery Stores
Schools
Restaurants
Gas Stations
Banks
Parks
Transit
Police
Fire Station
Place of Worship
Please select an amenity above to view a list.





team photo

Connect with Us

Loading...