Skip the navigation and jump to this page's content.

3150 Lloydtown Road King, Ontario

PROPERTY INFO

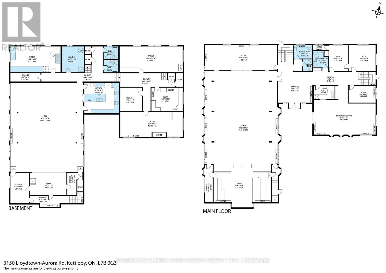
Place of Worship with space for a nursery/daycare. The property is situated on 2.94acres of desitable land in King Township within close proximity to Hwy400. Parking for approximately 35-40vehicles. Building total floor area 11554sqft (MPAC). Sanctuary accommodates 150, chapel 50, gym 160, admin office, pastor's office, meeting rooms, fellowship hall, and 2 kitchens. Lower level offers a nursery school, and gym, with plenty of storage space. Vendor is offering the property on an as-is, where-is basis.Floorplan and Matterport interactive virtual tour design attached. (id:4555)

PROPERTY SPECS

Price $2,700,000
City King, Ontario
Address 3150 Lloydtown Road
Listing ID N12839206
Parking 40.00
Land Size 11554
Type Industrial/Commercial
Status For Sale

EXTENDED FEATURES

Subtype Retail Ownership Freehold Heating / Cooling Other Sewer Septic System Parking 40.00



team photo
Windsor: 519-903-9355
Toronto: 905-220-7333
Office: 905-335-3042

REQUEST MORE INFORMATION

Grocery Stores
Schools
Restaurants
Gas Stations
Banks
Parks
Transit
Police
Fire Station
Place of Worship
Please select an amenity above to view a list.





team photo

Connect with Us

Loading...