Skip the navigation and jump to this page's content.

1967 Main Street Unit# 35 Hamilton, Ontario

$649,900
4 Beds
  2 Full / 1 Half
Virtual Tour

PROPERTY INFO

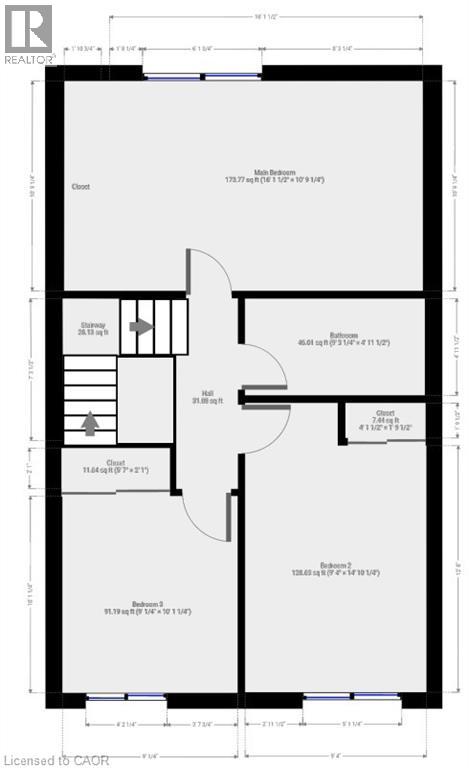
This completely renovated townhome set in a quiet, mature landscaped complex also comes with your own garage, your own driveway, and parking for your visitors. There are 3 good size bedrooms on the 3rd level including a kind-size bed primary bedroom. All three bedrooms have double-closets. The 2nd level living room, dining room, and kitchen areas are spacious and open and there is a separate den/playroom/bedroom. The 1st level has a covered vestibule and generous entrance hall with a closet and leads to a walkout to the private patio. The powder room and laundry are located here as is a good size room to use a family room or bonus space. This unit has; all new flooring, mostly hardwood and ceramics, new kitchen, new bathrooms, new doors, new trim, new lighting, and more. Heating and cooling provided by a combination of ductless air exchanger and baseboard heaters. Hot water tank is owned. If you are commuting to downtown Hamilton, McMaster, or elsewhere, there is convenient access to public transit HSR buses 01-King, 05-Delaware, and 51-McMaster. Highway access is also convenient. Investors note that per the Condo. Corp. Declaration, Each unit shall be occupied and used only as a private single family residence and for no other purpose. (id:4555)

PROPERTY SPECS

Price $649,900
City Hamilton, Ontario
Bed / Bath 4 / 2 Full, 1 Half
Address 1967 MAIN Street Unit# 35
Listing ID 40813646
Style Row / Townhouse
Construction Wood frame
Parking 2.00
Type Condominium
Status For Sale

EXTENDED FEATURES

Subtype Single Family Community Features School Bus Features Southern exposure, Conservation/green belt, Balcony Ownership Freehold Basement None Heating / Cooling Baseboard heaters, Electric, Other Sewer Municipal sewage system Parking 2.00

Open House(s):

WHEN TYPE  
Sunday, April 26, 2026 2:00 PM - 4:00 PM
Saturday, April 25, 2026 2:00 PM - 4:00 PM



team photo
Windsor: 519-903-9355
Toronto: 905-220-7333
Office: 905-335-3042

REQUEST MORE INFORMATION

Grocery Stores
Schools
Restaurants
Gas Stations
Banks
Parks
Transit
Police
Fire Station
Place of Worship
Please select an amenity above to view a list.





team photo

Connect with Us

Loading...