Skip the navigation and jump to this page's content.

68 Harold Court Hamilton, Ontario

$750,000
10 Beds
  3 Full
Virtual Tour

PROPERTY INFO

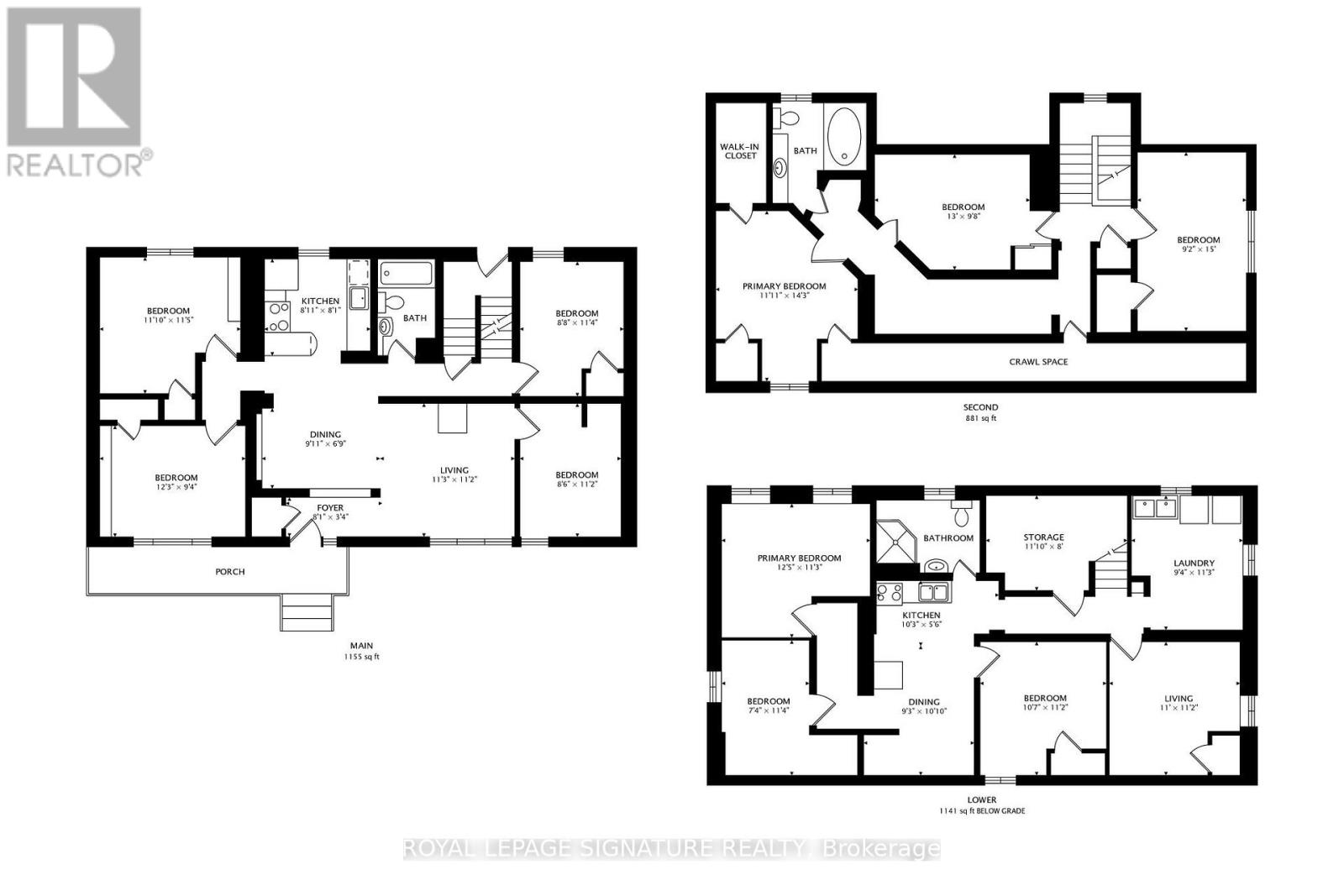
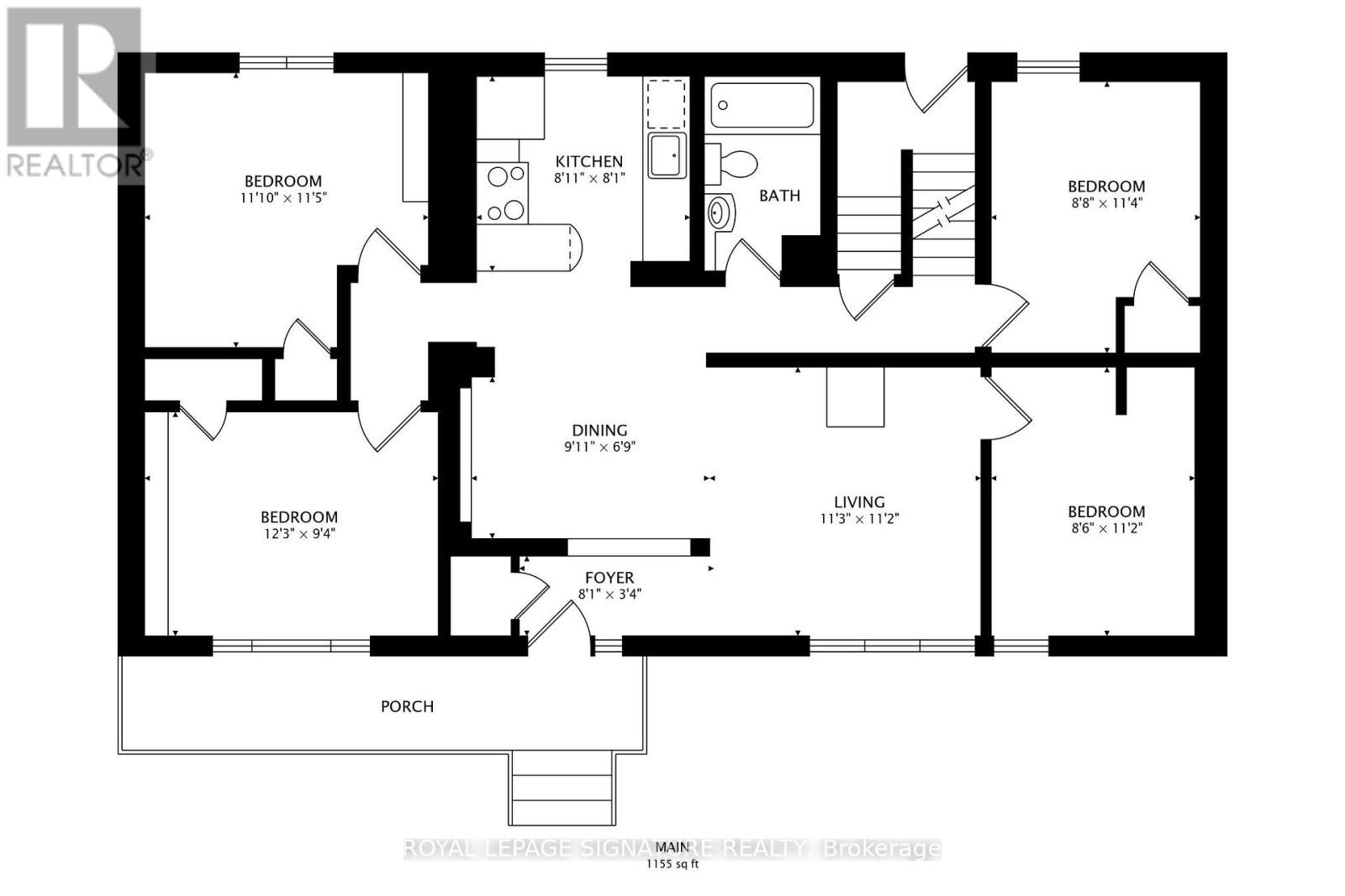
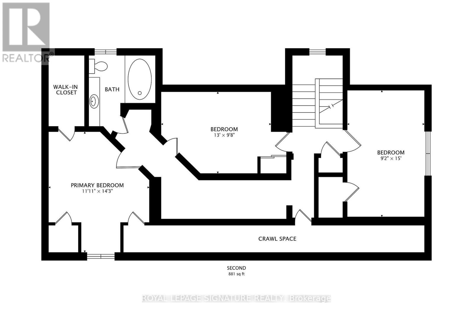
Exceptional Opportunity - Spacious Family Home or Prime Investment!This versatile property truly has it all! Nestled on a quiet court in a desirable neighbourhoodand backing onto peaceful green space, this home features hardwood floors and a flexible layoutacross three levels. With 11 bedrooms, 3 full bathrooms, and 2 kitchens, it's perfect as alarge family residence or an outstanding investment property near McMaster University. (id:4555)

PROPERTY SPECS

Price $750,000
City Hamilton, Ontario
Bed / Bath 10 / 3 Full
Address 68 Harold Court
Listing ID X12868680
Style House
Parking 4.00
Type Residential
Status For Sale

EXTENDED FEATURES

Subtype Single Family Features Cul-de-sac Ownership Freehold Basement Finished, N/A Heating / Cooling Forced air, Not known, Natural gas, Coil Fan Sewer Sanitary sewer Parking 4.00



team photo
Windsor: 519-903-9355
Toronto: 905-220-7333
Office: 905-335-3042

REQUEST MORE INFORMATION

Grocery Stores
Schools
Restaurants
Gas Stations
Banks
Parks
Transit
Police
Fire Station
Place of Worship
Please select an amenity above to view a list.





team photo

Connect with Us

Loading...