Skip the navigation and jump to this page's content.

67 Caroline Street Unit# 20b Hamilton, Ontario

$2,600
2 Beds
  2 Full

PROPERTY INFO

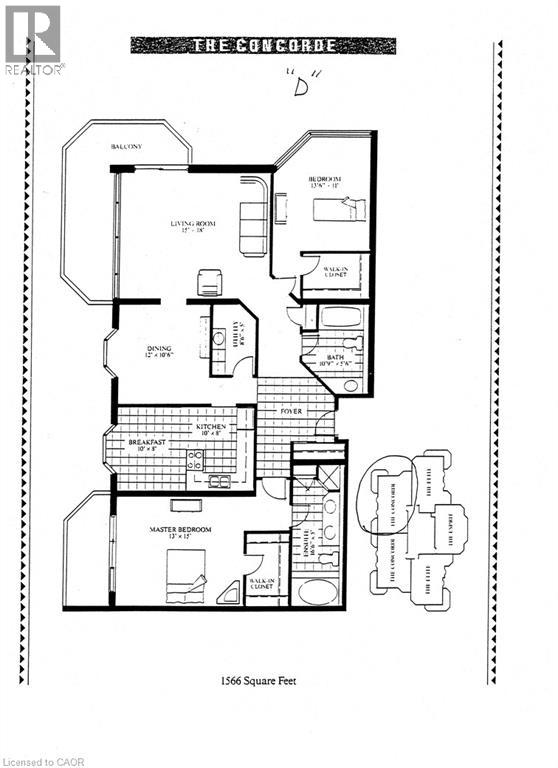
The Bentley, sought after condo in the heart of Hamilton Durand neighbourhood. This unit offers many desirable features; 9 ft. ceilings, 2 baths, 2 bedrooms, each with a walk-in-closet, master bedroom has ensuite bath with separate jetted tub and shower, in-suite laundry and underground parking for two mid-size cars. Enjoy city views from ceiling to floor windows or the 2 balconies. Brand new windows were installed in 2025. The building is well maintained and provides a fitness facility & party room with kitchen. It is walking distance to shopping, dining, theatre, transit, Go Station and all downtown amenities. (id:4555)

PROPERTY SPECS

Lease $2,600
City Hamilton, Ontario
Bed / Bath 2 / 2 Full
Address 67 CAROLINE Street Unit# 20B
Listing ID 40803187
Style Apartment
Construction Concrete block, Concrete Walls
Parking 2.00
Type Condominium
Status For Lease

EXTENDED FEATURES

Subtype Single Family Community Features Community Centre Features Balcony, No Pet Home, Automatic Garage Door Opener Ownership Leasehold Views Lake view Basement None Heating / Cooling Electric Sewer Municipal sewage system Parking 2.00



team photo
Windsor: 519-903-9355
Toronto: 905-220-7333
Office: 905-335-3042

REQUEST MORE INFORMATION

Grocery Stores
Schools
Restaurants
Gas Stations
Banks
Parks
Transit
Police
Fire Station
Place of Worship
Please select an amenity above to view a list.





team photo

Connect with Us

Loading...