Skip the navigation and jump to this page's content.

190 Hempstead Drive Hamilton, Ontario

PROPERTY INFO

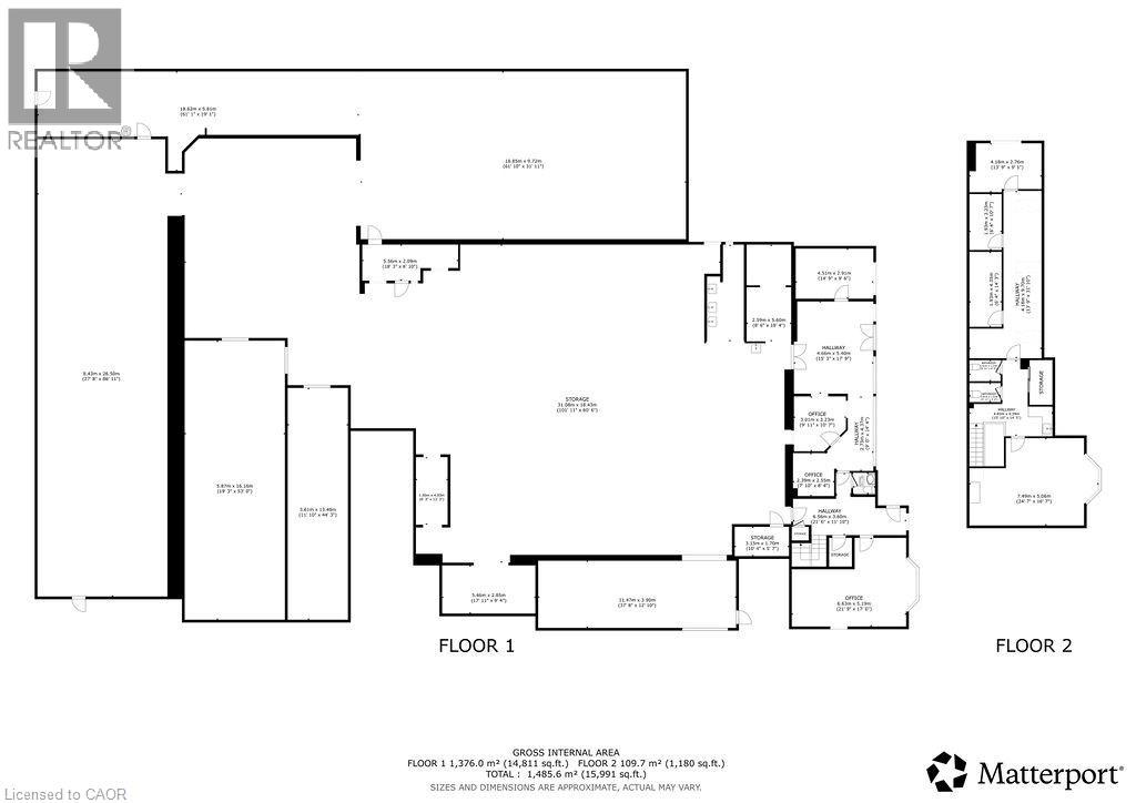
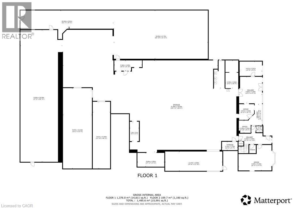
Rare opportunity to acquire a fully equipped food manufacturing and cold storage industrial facility in Hamilton’s established industrial core. This approx 18,000 sq. ft. building is offered with both land and building included and features M3 zoning, supporting a wide range of industrial uses. The facility includes 4 grade-level man doors and 3 shipping doors, providing excellent functionality for production, shipping, and receiving. Purpose-built for food manufacturing and processing, the property offers approximately 3,000 sq. ft. of freezer space, 760 sq. ft. of coolers, and a 265 sq. ft. blast freezer. The building holds a Global Food Safety Initiative (GFSI) certification, allowing for immediate operational use and reduced regulatory timelines. Strategically located with convenient access to major transportation routes, this is a rare turnkey opportunity for food manufacturers, owner-operators, or investors in one of Hamilton’s most sought-after industrial areas. Phase 1 of the ESA is completed, please view in supplements. PRICED FOR IMMEDIATE ACTION!!! (id:4555)

PROPERTY SPECS

Price $5,900,000
City Hamilton, Ontario
Address 190 HEMPSTEAD Drive
Listing ID 40796517
Square Footage 17976
Construction Concrete block, Concrete Walls
Parking 18.00
Type Industrial/Commercial
Status For Sale

EXTENDED FEATURES

Subtype Industrial Features Visual exposure, Paved driveway Ownership Freehold Basement None Parking 18.00



team photo
Windsor: 519-903-9355
Toronto: 905-220-7333
Office: 905-335-3042

REQUEST MORE INFORMATION

Grocery Stores
Schools
Restaurants
Gas Stations
Banks
Parks
Transit
Police
Fire Station
Place of Worship
Please select an amenity above to view a list.





team photo

Connect with Us

Loading...