Skip the navigation and jump to this page's content.

100 Burland Crescent Unit# B Hamilton, Ontario

PROPERTY INFO

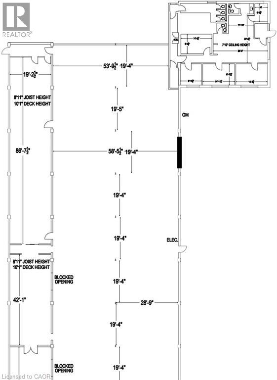
This expansive 12,900 sq ft industrial unit offers a robust set of features designed to accommodate a wide range of business operations. Key highlights include two powerful 5-ton overhead cranes, 100 Amp & 600 Volt electrical service, impressive ceiling heights reaching up to 17' 10, and a drive-in door. The property also boasts 1,900 sq ft of well-appointed office space, a secure, fenced-in yard, and ample parking for both staff and customers. Zoned M5 - General Industrial, this property is perfectly suited for manufacturing, production, warehousing, or service-related industries. Its prime location offers unbeatable convenience: just 4 minutes to the QEW, 4 minutes to the Red Hill Valley Parkway, 8 minutes to Burlington, and roughly midway between the U.S. border and Toronto—ensuring quick access to key transportation routes. Whether you're expanding or relocating, this property offers the flexibility and strategic location your business needs to thrive. (id:4555)

PROPERTY SPECS

Lease $13
City Hamilton, Ontario
Address 100 BURLAND Crescent Unit# B
Listing ID 40796025
Square Footage 12931
Type Industrial/Commercial
Status For Lease

EXTENDED FEATURES

Subtype Industrial Features Paved driveway Ownership Freehold Basement None Sewer Municipal sewage system



team photo
Windsor: 519-903-9355
Toronto: 905-220-7333
Office: 905-335-3042

REQUEST MORE INFORMATION

Grocery Stores
Schools
Restaurants
Gas Stations
Banks
Parks
Transit
Police
Fire Station
Place of Worship
Please select an amenity above to view a list.





team photo

Connect with Us

Loading...