Skip the navigation and jump to this page's content.

12 Weyburn Way Hamilton, Ontario

$1,869,900
3 Beds
  4 Full / 1 Half
Virtual Tour

PROPERTY INFO

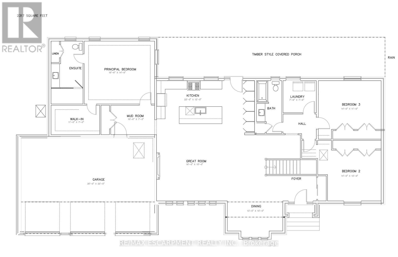
Welcome to Wildan Estates II, an exclusive new community in Freelton offering custom-built homes on spacious half-acre lots with municipal water, three-car garages, up to 3500 sq. ft. of upscale living. Choose from five thoughtfully designed models bungalows, bungalofts, and two storey homes featuring gourmet kitchens, luxurious bathrooms, 9-foot ceilings, upgraded insulation, EnergyStar windows and high-efficiency HVAC systems. Backed by Tarions warranty, these homes blend quality craftsmanship with rural charm. Nestled between Hamilton and Guelph, the charming village of Freelton offers a serene, scenic setting with a strong sense of community perfect for those seeking a quiet lifestyle without sacrificing convenience. Built by a trusted local homebuilder with over 30 years of experience, each home in Wildan Estates II combines quality craftsmanship with modern design to create a truly exceptional living experience (id:4555)

PROPERTY SPECS

Price $1,869,900
City Hamilton, Ontario
Bed / Bath 3 / 4 Full, 1 Half
Address 12 WEYBURN Way
Listing ID X12208462
Style House
Parking 6.00
Type Residential
Status For Sale

EXTENDED FEATURES

Subtype Single Family Ownership Freehold Basement Partially finished, Full Heating / Cooling Forced air, Natural gas Sewer Septic System Parking 6.00



team photo
Windsor: 519-903-9355
Toronto: 905-220-7333
Office: 905-335-3042

REQUEST MORE INFORMATION

Grocery Stores
Schools
Restaurants
Gas Stations
Banks
Parks
Transit
Police
Fire Station
Place of Worship
Please select an amenity above to view a list.





team photo

Connect with Us

Loading...