Skip the navigation and jump to this page's content.

3184 Lakeshore Road Haldimand, Ontario

$1,199,000
3 Beds
  2 Full / 1 Half
Virtual Tour

PROPERTY INFO

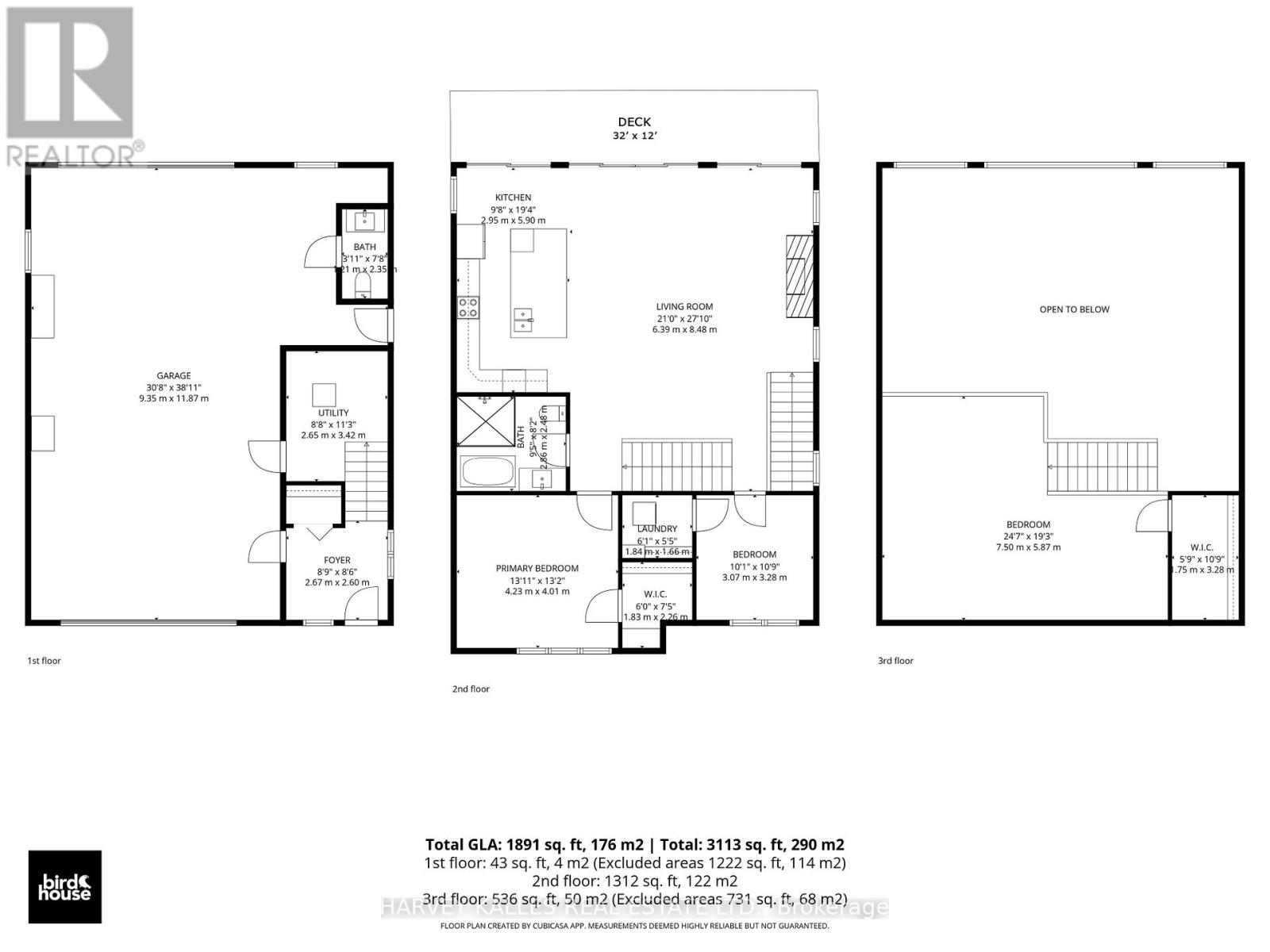
Soaring ceilings, uninterrupted lake views, and striking modern design define this custom-built detached home set in the charming town of Dunnville. The property benefits from a registered right of way providing effortless access to the lake. Thoughtfully designed to maximize light, space, and connection to its natural surroundings, this residence offers a truly unique living experience.The main living level is designed for both everyday living/entertaining, featuring a striking 23-ft vaulted ceiling with floor-to-ceiling windows and gorgeous lake views. A marble-finished fireplace adds a refined focal point. The open concept space features engineered hardwood flooring, a sleek open-concept kitchen with oversized island, built-in appliances. Walk out to your waterfront-view composite deck with outdoor dining/cooking area and modern, glass railings.Privately set above the living space, the lofted primary suite offers a truly special retreat. Overlooking the main living space below, this airy and light-filled sanctuary feels both connected and secluded, with generous proportions, a walk-in closet, and elevated views that create a calm, resort-like atmosphere.Upon entry at the ground level, an impressive garage space with sauna, gym and mechanical room adds exceptional utility and flexibility. An additional detached garage, storage shed, and expansive asphalt driveway further enhance the functionality of the property.Located just minutes from the Grand River, Byng Island Conservation Area, Rock Point Provincial Park, and local amenities, this home offers the perfect balance of small-town charm and outdoor lifestyle. (id:4555)

PROPERTY SPECS

Price $1,199,000
City Haldimand, Ontario
Bed / Bath 3 / 2 Full, 1 Half
Address 3184 Lakeshore Road
Listing ID X12926128
Style House
Flooring Tile, Hardwood
Parking 8.00
Type Residential
Status For Sale

EXTENDED FEATURES

Subtype Single Family Features Lighting, Carpet Free, Sauna Ownership Freehold Views View, Unobstructed Water View Basement None Heating / Cooling Forced air, Propane Sewer Septic System Parking 8.00



team photo
Windsor: 519-903-9355
Toronto: 905-220-7333
Office: 905-335-3042

REQUEST MORE INFORMATION

Grocery Stores
Schools
Restaurants
Gas Stations
Banks
Parks
Transit
Police
Fire Station
Place of Worship
Please select an amenity above to view a list.





team photo

Connect with Us

Loading...