Skip the navigation and jump to this page's content.

45 Howard Street Hagersville, Ontario

$659,900
3 Beds
  3 Full / 1 Half

PROPERTY INFO

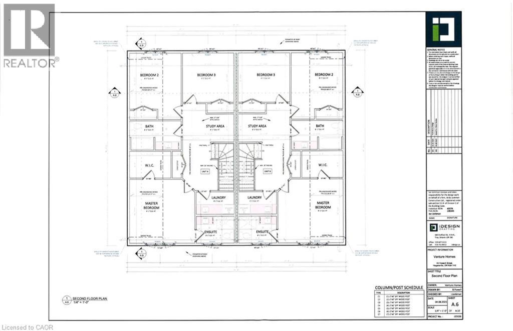
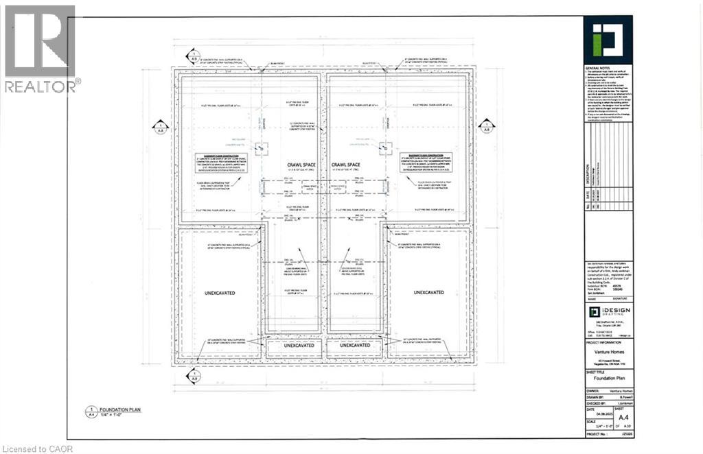
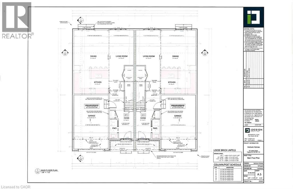
Take advantage of the new HST rebate with this incredible opportunity to own a brand-new home at a reduced price. Stylish finishes, functional layout, and exceptional value make this a must-see. This stunning, brand new 1,887 sq. ft. semi-detached home has been crafted by renowned builder Venture Homes and is situated in an established Hagersville neighbourhood. Featuring a bright and spacious main floor with engineered hardwood, this home offers large principal rooms perfect for entertaining and family life. The chef’s kitchen boasts quartz countertops, an island, stylish backsplash, under-cabinet lighting, and soft-close cabinetry. Upstairs, three oversized bedrooms await, including a primary suite with a huge walk-in closet and a convenient ensuite bath. Enjoy the practicality of a second-floor laundry room and a total of three modern bathrooms. Additional upgrades include central air, an insulated garage with automatic opener and a 10’ wide door, a covered front porch, elegant wood railings with steel balustrades, 5” baseboards throughout and ideally situated on a 140’ deep lot offering rear access from a rear alley. Includes 4 appliances, Tankless water heater, back deck and insulated garage with garage door opener. Quick closing is available. Attractive financing guaranteed 3.99% for 3-5 yr mortgages 25 yr amortization OAC. The home is Tarion-certified for peace of mind, and the location is unbeatable—close to schools, shopping, and the hospital. Move-in ready with no disappointments! (id:4555)

PROPERTY SPECS

Price $659,900
City Hagersville, Ontario
Bed / Bath 3 / 3 Full, 1 Half
Address 45 HOWARD Street
Listing ID 40801057
Style 2 Level, House
Fireplace 1.00
Parking 5.00
Type Residential
Status For Sale

EXTENDED FEATURES

Subtype Single Family Community Features Community Centre Features Automatic Garage Door Opener Ownership Freehold Basement Unfinished, Crawl space Heating / Cooling Forced air, Natural gas Sewer Municipal sewage system Parking 5.00



team photo
Windsor: 519-903-9355
Toronto: 905-220-7333
Office: 905-335-3042

REQUEST MORE INFORMATION

Grocery Stores
Schools
Restaurants
Gas Stations
Banks
Parks
Transit
Police
Fire Station
Place of Worship
Please select an amenity above to view a list.





team photo

Connect with Us

Loading...