Skip the navigation and jump to this page's content.

10 Tupper Boulevard Grimsby, Ontario

$2,099,900
3 Beds
  4 Full / 1 Half
Virtual Tour

PROPERTY INFO

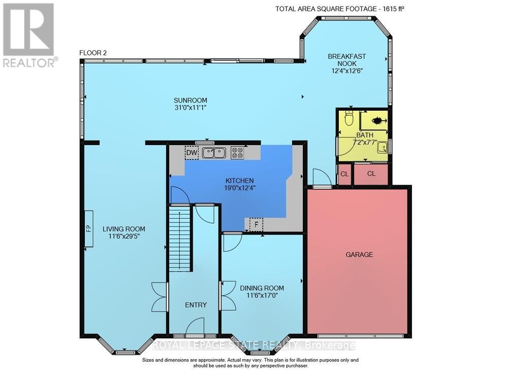
GRIMSBY BEACHFRONT WITH REMARKABLE LAKE ONTARIO AND GTA SKYLINE VIEWS Welcome to an exceptional private beachfront home in Grimsby, where postcard-perfect Lake Ontario and GTA skyline views are a daily reality. The traditional center hall plan leads you into an elegant living room, complete with a cozy gas fireplace and unobstructed water views. The spacious kitchen features an abundance of cabinetry, while the breathtaking 500 sq ft, four-season sunroom serves as the home's centerpiece, offering wall-to-wall windows and ever-changing vistas.Upstairs, the primary bedroom suite is a private sanctuary with a walk-in closet and a three-piece ensuite, which features a custom glass shower and stunning views. Two additional, generous bedrooms and a four-piece bathroom complete the upper level. Downstairs, the finished basement provides a custom wine cellar, a large recreation/media room, and a built-in wet sauna with a two-piece bathroom. The true masterpiece is the meticulously landscaped backyard, which offers multiple entertaining areas, including a patio, a hot tub, and your own private beachperfect for swimming, kayaking, or paddleboarding.This lakeside retreat also includes a single-car garage, double-wide parking for four cars, and easy access to the QEW, YMCA, and multiple schools. Come experience picturesque sunsets and a remarkable waterfront lifestyle. (id:4555)

PROPERTY SPECS

Price $2,099,900
City Grimsby, Ontario
Bed / Bath 3 / 4 Full, 1 Half
Address 10 Tupper Boulevard
Listing ID X12434785
Style House
Fireplace 1.00
Parking 5.00
Type Residential
Status For Sale

EXTENDED FEATURES

Subtype Single Family Features Waterway, Sauna Ownership Freehold Views View, View of water, Direct Water View Basement Finished, Full Heating / Cooling Forced air, Natural gas Sewer Sanitary sewer Parking 5.00



team photo
Windsor: 519-903-9355
Toronto: 905-220-7333
Office: 905-335-3042

REQUEST MORE INFORMATION

Grocery Stores
Schools
Restaurants
Gas Stations
Banks
Parks
Transit
Police
Fire Station
Place of Worship
Please select an amenity above to view a list.





team photo

Connect with Us

Loading...