Skip the navigation and jump to this page's content.

18 Schortinghuis Street Georgina, Ontario

$813,185
2 Beds
  2 Full

PROPERTY INFO

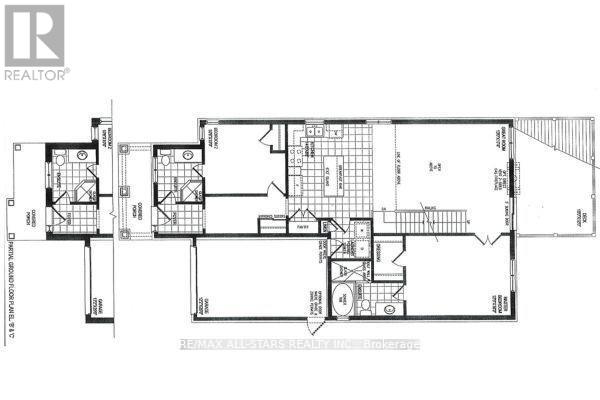
New home to be built in the Hedge Road Landing Active Adult Community. The Juniper Model Elevation B with lot 1355 sq ft. With reasonable monthly maintenance fees which include lawn maintenance and snow removal, a future private clubhouse and 20 x 40 in-ground pool to be constructed. An indirect waterfront property with 260 ft of private lakefront. Premium standard features including 9 ft ceilings, quartz counter tops, engineered hardwood flooring, smooth ceilings. For complete list see builder feature schedule. Paved driveway, and more! Cottage style bungalow, on a 40 ft lot. Superior design and spacious floor plans. Other models available. Reputable builder and registered with Tarion. (id:4555)

PROPERTY SPECS

Price $813,185
City Georgina, Ontario
Bed / Bath 2 / 2 Full
Address 18 Schortinghuis Street
Listing ID N12953344
Style Bungalow, House
Parking 2.00
Type Residential
Status For Sale

EXTENDED FEATURES

Subtype Single Family Features Irregular lot size Ownership Freehold Basement Unfinished, N/A Heating / Cooling Forced air, Natural gas Sewer Sanitary sewer Parking 2.00



team photo
Windsor: 519-903-9355
Toronto: 905-220-7333
Office: 905-335-3042

REQUEST MORE INFORMATION

Grocery Stores
Schools
Restaurants
Gas Stations
Banks
Parks
Transit
Police
Fire Station
Place of Worship
Please select an amenity above to view a list.





team photo

Connect with Us

Loading...