Skip the navigation and jump to this page's content.

346 Miami Drive Georgina, Ontario

PROPERTY INFO

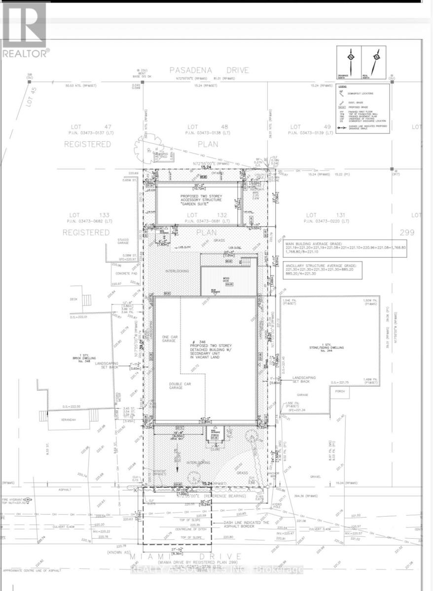
Attention Builders & Investors!Rare opportunity to own a fabulous, mature 50 x 128 ft lot in the highly sought-after south end of Keswick-just steps to Lake Simcoe! Enjoy access to the lake and a private beach association, offering endless recreational activities including swimming, water sports, and fishing.This property comes ready for your vision, with site Alteration permits already completed with the city and designs available for both the main house and a garden suite-a fantastic opportunity for redevelopment or investment.The lot is fully fenced, providing privacy and security, and a new survey (2025) has already been completed for your convenience.Don't miss this exceptional chance to build in a prime lakeside location! (id:4555)

PROPERTY SPECS

Price $498,000
City Georgina, Ontario
Address 346 Miami Drive
Listing ID N12929726
Style Bungalow
Type Vacant Land
Status For Sale

EXTENDED FEATURES

Community Features School Bus Ownership Freehold



team photo
Windsor: 519-903-9355
Toronto: 905-220-7333
Office: 905-335-3042

REQUEST MORE INFORMATION

Grocery Stores
Schools
Restaurants
Gas Stations
Banks
Parks
Transit
Police
Fire Station
Place of Worship
Please select an amenity above to view a list.





team photo

Connect with Us

Loading...