Skip the navigation and jump to this page's content.

110 Mountain Lake Drive Georgian Bluffs, Ontario

$798,000
2 Beds
  1 Full

PROPERTY INFO

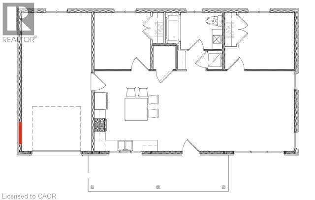
ESTATE WATERFRONT PROPERTY!! Welcome to a piece of nostalgic paradise, nestled in a picturesque country setting on a private lake. The construction of a 2 bedroom Shop-dominium has begun, with a possession date in and around March 2026. Live here while you design and build your dream estate! Then the shop-dominium can easily be converted to a shop, in-law suite, or guest house, once your dream home is built. This 7 acre beauty has over 300 feet of lake frontage. It showcases a stately, charming beam barn, with lots of great potential for the creative hobbyist, and other endless opportunities. New drilled well 2024. With a plethora of space to build your executive dream home, overlooking the stunning south facing views of Mountain Lake, and a shop for your toys, the sky is the limit!! Whether you wake up to the loons calling, or jump in the kayaks and meander around this serene lake you will enjoy every season at this peaceful Shangri-la! (id:4555)

PROPERTY SPECS

Price $798,000
City Georgian Bluffs, Ontario
Bed / Bath 2 / 1 Full
Address 110 MOUNTAIN LAKE Drive
Listing ID 40784706
Style Bungalow, House
Parking 12.00
Type Residential
Status For Sale

EXTENDED FEATURES

Subtype Single Family Community Features School Bus Features Cul-de-sac, Crushed stone driveway, Country residential Ownership Freehold Views Lake view Basement None Heating / Cooling In Floor Heating Sewer Septic System Parking 12.00



team photo
Windsor: 519-903-9355
Toronto: 905-220-7333
Office: 905-335-3042

REQUEST MORE INFORMATION

Grocery Stores
Schools
Restaurants
Gas Stations
Banks
Parks
Transit
Police
Fire Station
Place of Worship
Please select an amenity above to view a list.





team photo

Connect with Us

Loading...