Skip the navigation and jump to this page's content.

14 East Church Street Erin, Ontario

$1,249,000
3 Beds
  4 Full / 2 Half
Virtual Tour

PROPERTY INFO

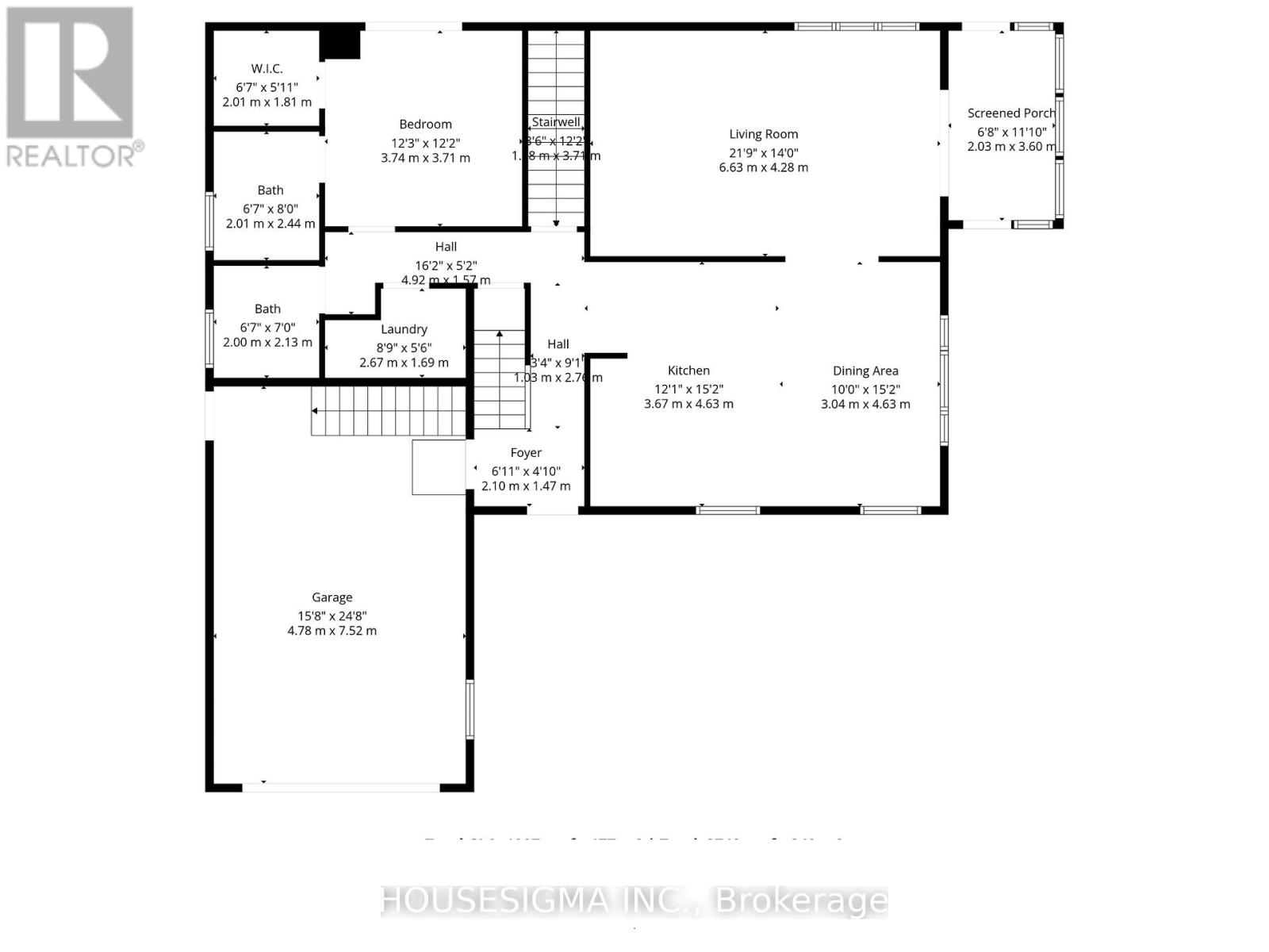
*Half acre conveniently in town* Located on a quiet, private cul-de-sac, this thoughtfully updated 3 bedroom, 4 bathroom Cape Cod-style home sits on a rare 1/2 acre lot offering beautiful views, space, character and a high level of finish throughout. At the heart of the home is a custom kitchen, designed for both function& impact. Quartz countertops throughout, a large statement island with reclaimed farmhouse wood detail, pot filler, farmhouse sink set the tone, while top-tier appliances including; Wolf gas range & drawer microwave, Fisher & Paykel refrigerator complete the space. The kitchen opens to the dining area with a striking brick feature wall, which then flows into a bright, inviting living room, creating an ideal layout for everyday living and entertaining. A sunroom just off the living room adds another warm, versatile space. The home offers 2 primary bedrooms, both with walk-in closets & ensuite bathrooms (in fact, every bedroom in the home has its own dedicated bathroom). The main-level primary suite includes a walkout to the deck & backyard, plus may also function as an office, den or secondary living space. Upstairs, the second primary suite features a larger ensuite with both a soaker tub & separate shower. Main-level laundry adds everyday convenience. A covered wraparound porch sets the tone on arrival, and the home benefits from thoughtful system updates, offering comfort and confidence moving forward. A paved driveway leads to a detached 32'x22' shop with 30-amp service, while the home also offers an attached oversized garage with direct access to the main level as well as a separate entrance/staircase to the spray-foamed basement, framed & ready to be finished to suit your needs - practical, efficient, and well thought out. A rare opportunity to own a refined, move-in-ready home on an oversized lot...right in town. (id:4555)

PROPERTY SPECS

Price $1,249,000
City Erin, Ontario
Bed / Bath 3 / 4 Full, 2 Half
Address 14 East Church Street
Listing ID X12770426
Style House
Flooring Tile, Hardwood
Parking 12.00
Type Residential
Status For Sale

EXTENDED FEATURES

Subtype Single Family Features Carpet Free Ownership Freehold Basement Unfinished, Full, Separate entrance, N/A Heating / Cooling Forced air, Natural gas Sewer Septic System Parking 12.00



team photo
Windsor: 519-903-9355
Toronto: 905-220-7333
Office: 905-335-3042

REQUEST MORE INFORMATION

Grocery Stores
Schools
Restaurants
Gas Stations
Banks
Parks
Transit
Police
Fire Station
Place of Worship
Please select an amenity above to view a list.





team photo

Connect with Us

Loading...