Skip the navigation and jump to this page's content.

89 Meadow Vista Crescent East Gwillimbury, Ontario

$724,900
3 Beds
  3 Full / 1 Half

PROPERTY INFO

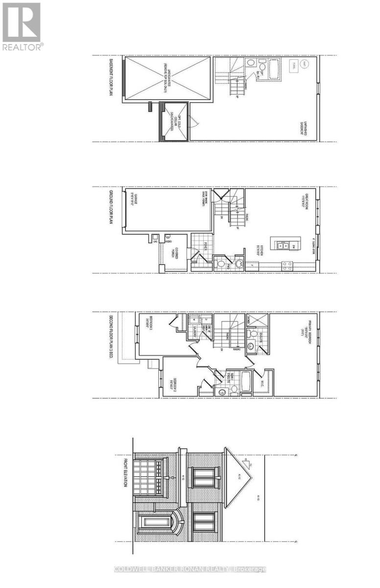
Perfect Opportunity for ALL BUYERS - Take Advantage of the Approved GST/HST Incentive! Discover this beautifully crafted all-brick Energy Star* freehold townhome nestled in a sought-after family-friendly community. Offering 1,355 sq. ft. of thoughtfully designed living space, this stunning 3-bedroom, 2.5 -bathroom home perfectly blends modern style, comfort, and everyday functionality. With late Fall 2026 occupancy, buyers have the exciting opportunity to select finishes and personalize their home to match their unique style. Step inside to a bright, open-concept main floor featuring 9' ceilings, elegant hardwood flooring, and a chef-inspired kitchen designed for both daily living and entertaining. The kitchen showcases tall upper cabinetry, quartz countertops, a spacious island, and an extended breakfast bar-perfect for gathering with family and friends. A 6' patio door leads directly to the backyard, creating seamless indoor-outdoor living. An elegant stained hardwood staircase with modern Black metal pickets leads to the second floor where you'll find 3 bedrooms, two full bathrooms, and a conveniently located laundry room. The unfinished basement with cold cellar offers excellent storage and future potential to finish. Built by FirstView Homes, known for their quality craftsmanship and attention to detail, this is a home you can purchase with confidence. Community Highlights: Close to shopping, dining, and everyday amenities, Walking distance to parks and trailways. Access to major routes and a 7-minute drive to the GO Station. Additional models and floor plans are also available. Buyers must also qualify for the GST/HST New Housing Rebate under the Government of Canada's legislation. HST is in addition to the purchase price if you do not qualify. Don't miss the chance to join this growing community-your new home awaits (id:4555)

PROPERTY SPECS

Price $724,900
City East Gwillimbury, Ontario
Bed / Bath 3 / 3 Full, 1 Half
Address 89 Meadow Vista Crescent
Listing ID N12905000
Style Row / Townhouse
Flooring Hardwood, Carpeted, Ceramic
Parking 3.00
Type Residential
Status For Sale

EXTENDED FEATURES

Subtype Single Family Ownership Freehold Basement Unfinished, Full Heating / Cooling Forced air, Natural gas Sewer Sanitary sewer Parking 3.00



team photo
Windsor: 519-903-9355
Toronto: 905-220-7333
Office: 905-335-3042

REQUEST MORE INFORMATION

Grocery Stores
Schools
Restaurants
Gas Stations
Banks
Parks
Transit
Police
Fire Station
Place of Worship
Please select an amenity above to view a list.





team photo

Connect with Us

Loading...