Skip the navigation and jump to this page's content.

42 Duchess Drive Delhi, Ontario

$1,036,344
4 Beds
  3 Full

PROPERTY INFO

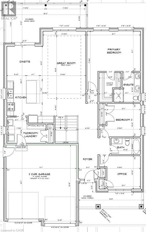
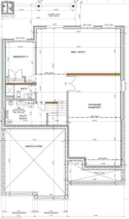
Welcome to 42 Duchess Drive in Delhi, a thoughtfully designed bungalow, offering exceptional craftsmanship, modern functionality, and future flexibility. Set on a premium lot in Bluegrass Estates, currently under construction, this home blends timeless exterior finishes with a layout tailored for today’s lifestyles. The main level features approximately 1,697 sq. ft. of bright, open-concept living, highlighted by a spacious great room with tray ceiling and large windows, a well-appointed kitchen with custom cabinetry and a 7-foot island with seating. A dining area with patio doors leading to a covered rear deck. Three generously sized bedrooms are located on the main floor, including a private primary suite complete with walk-in closet and ensuite featuring double sinks. Main-floor laundry doubles as a functional mudroom with sink and storage. The walk-out lower level adds approximately 750 sq. ft. of finished space, including a large recreation room with direct backyard access, a fourth bedroom, and a full three-piece bathroom. An additional expansive area remains unfinished, offering excellent potential for future development, multi-generational living, or in-law capability. Exterior finishes include brick, stone, and stucco accents, a poured concrete foundation, attached double garage, and a double-wide private driveway. Municipal services, natural gas heating, central air, HRV/ERV system, and high-speed internet are all included. Ideally located close to schools, parks, recreation facilities, shopping, and community amenities, this property offers the opportunity to secure a brand-new home in one of Delhi’s most desirable residential areas. There is still time to customize this home for your personal use. Taxes not yet assessed. (id:4555)

PROPERTY SPECS

Price $1,036,344
City Delhi, Ontario
Bed / Bath 4 / 3 Full
Address 42 DUCHESS Drive
Listing ID 40812500
Style Bungalow, House
Parking 6.00
Type Residential
Status For Sale

EXTENDED FEATURES

Subtype Single Family Community Features Quiet Area, School Bus, Community Centre Features Crushed stone driveway, Sump Pump, Automatic Garage Door Opener Ownership Freehold Basement Partially finished, Full Heating / Cooling Forced air, Natural gas Sewer Municipal sewage system, Sanitary sewer Parking 6.00



team photo
Windsor: 519-903-9355
Toronto: 905-220-7333
Office: 905-335-3042

REQUEST MORE INFORMATION

Grocery Stores
Schools
Restaurants
Gas Stations
Banks
Parks
Transit
Police
Fire Station
Place of Worship
Please select an amenity above to view a list.





team photo

Connect with Us

Loading...