Skip the navigation and jump to this page's content.

35-39 Main Street Unit# 301 Cambridge, Ontario

$1,950
2 Beds
  1 Full

PROPERTY INFO

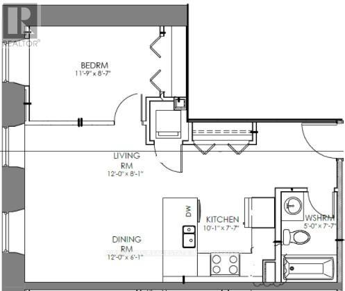
Welcome to Granite Lofts, located at 35 Main Street in the heart of historic downtown Galt, Cambridge. This unique heritage building blends early 20th-century industrial charm with modern loft-style living. Step inside to soaring ceilings, exposed brick and beam architecture, oversized windows, and open-concept layouts that flood each unit with natural light. Carefully restored and thoughtfully updated, these lofts feature modern kitchens and con temporary finishes that highlight the character of the original structure. Located just steps from the Grand River, trendy cafes, art galleries, and boutique shopping, Granite Lofts offers both convenience and culture. With easy access to trails, transit, and key commuting routes, this location is ideal for professionals, creatives, and those looking for a vibrant urban lifestyle with a touch of history. Parking passes to be purchased through the City of Cambridge for any of their downtown lots. Authentic loft. Style units with exposed brick and timber beams. One bedroom, open-concept layouts with high ceilings and large windows. Modern kitchens with quartz countertops and stainless-steel appliances. In-suite laundry and secure building access. Walkable to shops, restaurants, and the Gaslight District. Easy access to Highway 401 and public transit (id:4555)

PROPERTY SPECS

Lease $1,950
City Cambridge, Ontario
Bed / Bath 2 / 1 Full
Address 35-39 main Street Unit# 301
Listing ID X12633944
Style Other
Flooring Hardwood
Type Residential
Status For Lease

EXTENDED FEATURES

Subtype Single Family Features Level lot, Carpet Free, In suite Laundry Ownership Leasehold Basement None Heating / Cooling Forced air, Natural gas Sewer Sanitary sewer



team photo
Windsor: 519-903-9355
Toronto: 905-220-7333
Office: 905-335-3042

REQUEST MORE INFORMATION

Grocery Stores
Schools
Restaurants
Gas Stations
Banks
Parks
Transit
Police
Fire Station
Place of Worship
Please select an amenity above to view a list.





team photo

Connect with Us

Loading...