Skip the navigation and jump to this page's content.

2060 Lakeshore Road Unit# 1303 Burlington, Ontario

$1,495,000
2 Beds
  2 Full
Virtual Tour

PROPERTY INFO

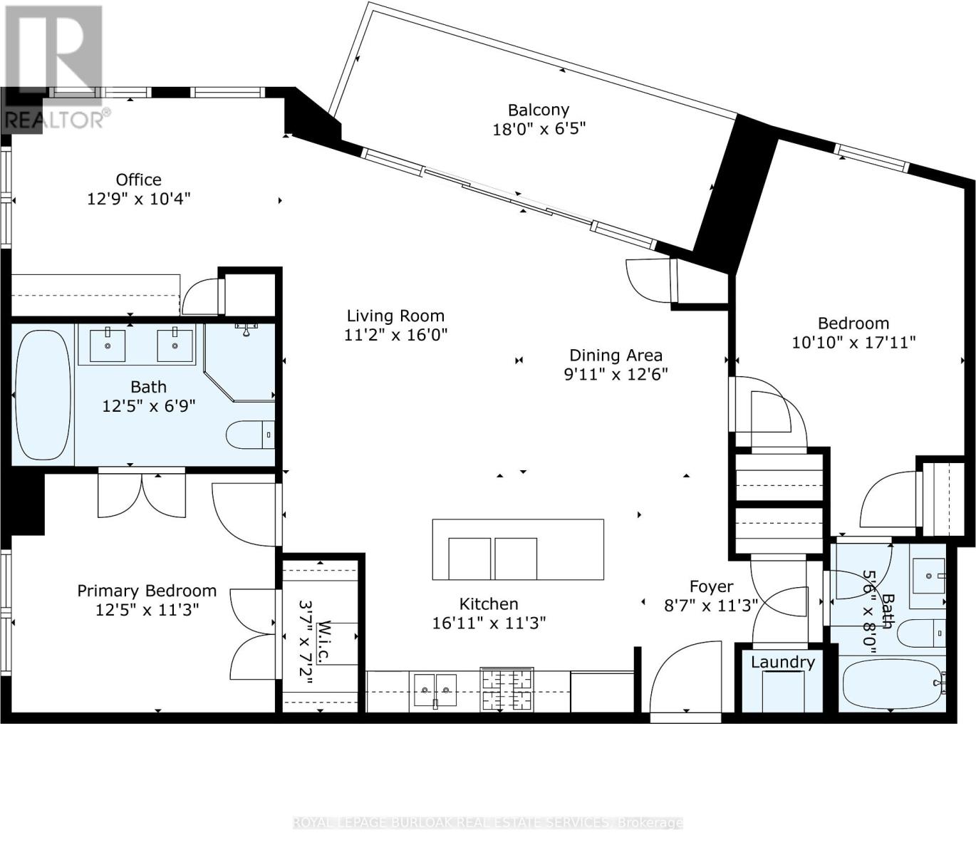
Experience unparalleled luxury at Bridgewater Residences on the lake. This stunning 1,269SF unit boasts a flawless layout and breathtaking, unobstructed views of Lake Ontario, from Burlington to the Toronto skyline. Every detail speaks of quality, from the hardwood floors to the high-end Thermador built in kitchen appliances, including a 5-burner gas range set in granite countertops. Floor-to-ceiling windows flood the open-concept living and dining area with natural light, while offering access to a spacious balcony equipped for BBQs. Both bedrooms feature spectacular views and luxurious en-suites-the primary with a 5-piece set including a separate tub and glass shower, all complemented by marble and granite finishes with heated floors. The secondary bedroom enjoys ensuite privileges and also boasts heated floors. A generous corner den provides a flexible space, ideal for a home office or gym, equipped with built-in cabinetry, which can be easily converted into a 3rd bedroom. Included are central vacuum and a garbage disposal unit. Enjoy the building's exclusive amenities: indoor pool, rooftop courtyard, dual gyms, games and party rooms, and a lakefront deck. Benefit from 24-hour concierge, bike storage, valet visitor parking, and two EV-ready parking spaces, enhancing this premium living experience. (id:4555)

PROPERTY SPECS

Price $1,495,000
City Burlington, Ontario
Bed / Bath 2 / 2 Full
Address 2060 Lakeshore Road Unit# 1303
Listing ID W12946468
Style Apartment
Parking 2.00
Type Condominium
Status For Sale

EXTENDED FEATURES

Subtype Single Family Community Features Pets Allowed With Restrictions Features Balcony, In suite Laundry Ownership Freehold Basement None Heating / Cooling Forced air, Natural gas Parking 2.00



team photo
Windsor: 519-903-9355
Toronto: 905-220-7333
Office: 905-335-3042

REQUEST MORE INFORMATION

Grocery Stores
Schools
Restaurants
Gas Stations
Banks
Parks
Transit
Police
Fire Station
Place of Worship
Please select an amenity above to view a list.





team photo

Connect with Us

Loading...