Skip the navigation and jump to this page's content.

2088 James Street Unit# 310 Burlington, Ontario

$2,895
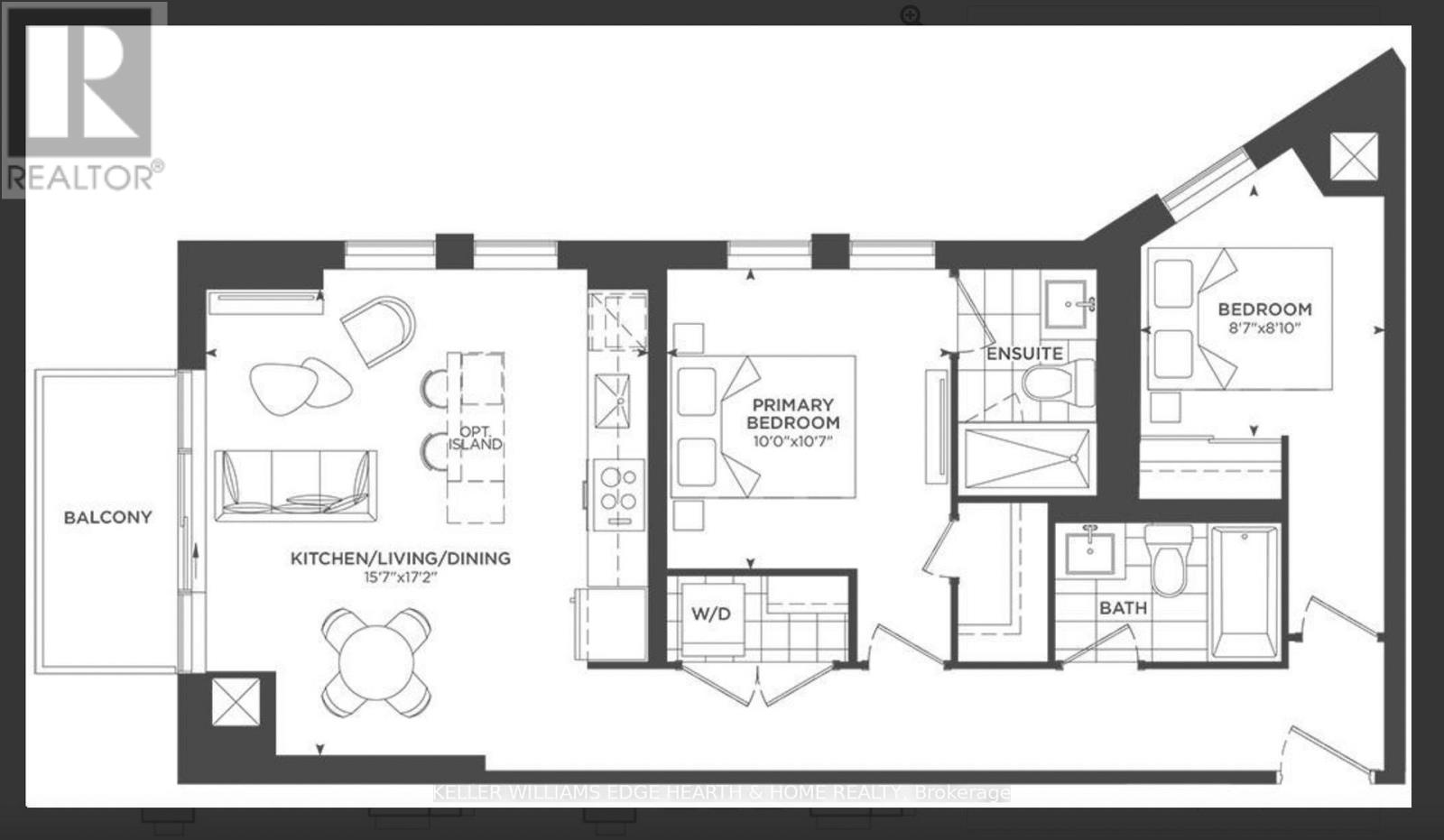
2 Beds
  2 Full
Virtual Tour

PROPERTY INFO

Location, location, location. Be the first to occupy this state of the art suite in this state of the art building. Prime downtown Burlington local. Walk to shopping, restaurants, lakefront park, pier, art gallery, library, hospital, preforming arts centre, walking trails and transit. This BRAND NEW 2 bedroom, 2 bath suite offers sunlit rooms in new luxurious building with plenty of amenities. In suite laundry facilities. Sleek kitchen with quartz counters and centre island. Balcony with southern exposure. Window coverings included. Fob locking system on doors. Virtual valet at front lobby with concierge/security services. Amenities include, pet wash, roofs top terrace with BBQ's, loft lounge, exercise room with an array of equipment, yoga room. 1 underground parking space with EV charger, 1 storage locker. (id:4555)

PROPERTY SPECS

Lease $2,895
City Burlington, Ontario
Bed / Bath 2 / 2 Full
Address 2088 James Street Unit# 310
Listing ID W12774502
Style Apartment
Parking 1.00
Type Condominium
Status For Lease

EXTENDED FEATURES

Subtype Single Family Community Features Pets Allowed With Restrictions Features Balcony, Carpet Free Ownership Leasehold Basement None Heating / Cooling Forced air, Natural gas Parking 1.00



team photo
Windsor: 519-903-9355
Toronto: 905-220-7333
Office: 905-335-3042

REQUEST MORE INFORMATION

Grocery Stores
Schools
Restaurants
Gas Stations
Banks
Parks
Transit
Police
Fire Station
Place of Worship
Please select an amenity above to view a list.





team photo

Connect with Us

Loading...