Skip the navigation and jump to this page's content.

3160 Britannia Road Burlington, Ontario

$4,549,000
5 Beds
  6 Full / 1 Half
Virtual Tour

PROPERTY INFO

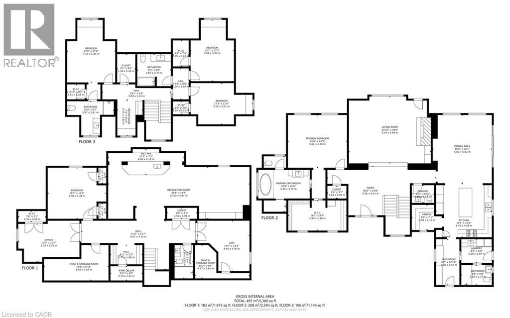
A rare opportunity to enjoy a private, cottage-like escape without ever leaving home. Set on manicured, meticulously maintained grounds, this property offers complete privacy and a serene atmosphere that feels worlds away—yet remains minutes from top private and public schools, prestigious golf courses, parks, trails, and local farms. This beautifully designed custom two-storey home features over 5,800 sq. ft. of finished living space, crafted with exceptional attention to detail. The moment you enter, you’re greeted by designer finishes and architectural touches, including a sunken family room with wood-beamed ceilings and a striking Owen Sound stone wood-burning fireplace. With 5 bedrooms and 6 bathrooms, the home blends luxury living with true resort-style amenities. It’s ideal for both intimate family living and large-scale entertaining, indoors and out. The backyard is a private oasis, perfect for hosting gatherings or enjoying peaceful summer days. A large covered porch overlooks the in-ground heated pool, hot tub, cabana, and fire pit—an inviting space for sunset views, roasting marshmallows, or unwinding in total seclusion. The fully finished lower level extends the home’s entertainment and lifestyle appeal, offering a private gym, oversized bar, expansive media area with surround sound, wine room, dedicated office, and an additional bedroom with a 3-piece bathroom. This is more than a home—it’s a sanctuary, a retreat, and a place to live, entertain, and escape in complete privacy. (id:4555)

PROPERTY SPECS

Price $4,549,000
City Burlington, Ontario
Bed / Bath 5 / 6 Full, 1 Half
Address 3160 BRITANNIA Road
Listing ID 40808868
Style 2 Level, House
Fireplace 1.00
Parking 15.00
Land Size 1.65
Type Residential
Status For Sale

EXTENDED FEATURES

Subtype Single Family Features Ravine, Conservation/green belt, Paved driveway, Country residential, Sump Pump Ownership Freehold Views Mountain view Basement Finished, Full Heating / Cooling Forced air, Natural gas Sewer Septic System Parking 15.00



team photo
Windsor: 519-903-9355
Toronto: 905-220-7333
Office: 905-335-3042

REQUEST MORE INFORMATION

Grocery Stores
Schools
Restaurants
Gas Stations
Banks
Parks
Transit
Police
Fire Station
Place of Worship
Please select an amenity above to view a list.





team photo

Connect with Us

Loading...