Skip the navigation and jump to this page's content.

1121 Cooke Boulevard Unit# 13 Burlington, Ontario

$829,900
3 Beds
  2 Full / 1 Half
Virtual Tour

PROPERTY INFO

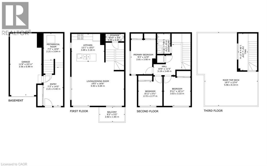
Location, location, location! This modern 3-bedroom, 1.5-bath, 3-storey corner end-unit townhome condo offers approximately 1,600 sq ft of stylish, low-maintenance living in one of Burlington’s most desirable and commuter-friendly locations. As a corner unit, it benefits from extra windows that fill the home with natural light. The second floor features a beautifully designed open-concept layout, with a spacious living and dining area that’s perfect for entertaining and easy to furnish to suit your style. The kitchen is both functional and elegant, with quartz countertops, a designer backsplash, stainless steel appliances, and a large island with breakfast bar seating—ideal for hosting or casual dining. A convenient 2-piece powder room is also located on this level. The third floor includes three bright bedrooms, a full 4-piece bathroom, and bedroom-level laundry for added convenience. The top level boasts an oversized private rooftop terrace with stunning views of Burlington's north and east skyline—perfect exposure for enjoying beautiful scenery both day and night. Step out to an additional balcony from the dining area for even more outdoor space. Located just steps from the Aldershot GO Station and minutes from major highways, this home is perfect for commuters. Enjoy close proximity to Lake Ontario, marinas, parks, trails, the Royal Botanical Gardens, Burlington Golf & Country Club, shopping, restaurants, and all the amenities you need. Bright, modern, and move-in ready—this home offers the perfect blend of comfort, convenience, and style. (id:4555)

PROPERTY SPECS

Price $829,900
City Burlington, Ontario
Bed / Bath 3 / 2 Full, 1 Half
Address 1121 COOKE Boulevard Unit# 13
Listing ID 40762274
Style 3 Level, Row / Townhouse
Parking 2.00
Type Condominium
Status For Sale

EXTENDED FEATURES

Subtype Single Family Community Features School Bus Features Visual exposure, Balcony Ownership Freehold Basement None Heating / Cooling Natural gas Sewer Municipal sewage system Parking 2.00



team photo
Windsor: 519-903-9355
Toronto: 905-220-7333
Office: 905-335-3042

REQUEST MORE INFORMATION

Grocery Stores
Schools
Restaurants
Gas Stations
Banks
Parks
Transit
Police
Fire Station
Place of Worship
Please select an amenity above to view a list.





team photo

Connect with Us

Loading...