Skip the navigation and jump to this page's content.

1177 King Road Burlington, Ontario

PROPERTY INFO

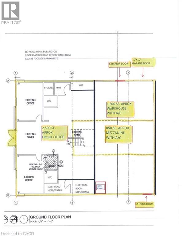
Located on the east side of King Road, this is the front 40% of the building. Comes with spectacular office space of approximately 2500 sq. ft. consisting of 2 Large private offices private each with private washrooms offices. The balance 1800 sq. ft. being fully air conditioned open office/showroom/studio/shop work space. The drive in loading door measures 10' H x 10' W. 4 washrooms 6+ parking. Tenants proportionate share of the Taxes Maintenance and Insurance is estimated to be $5.50 per sq. ft. per annum for 2025. Hydro service is a 100 amps @ 600 volts 3 phase. BONUS FREE OF CHARGE is a 500 sq. ft. mezzanine that can be used for storage or production, employee meeting/training, administration, tool storage and more. (id:4555)

PROPERTY SPECS

Lease $14
City Burlington, Ontario
Address 1177 KING Road
Listing ID 40767454
Square Footage 4300
Type Industrial/Commercial
Status For Lease

EXTENDED FEATURES

Subtype Office Community Features High Traffic Area Features Visual exposure, Paved driveway Ownership Leasehold Basement None Sewer Municipal sewage system



team photo
Windsor: 519-903-9355
Toronto: 905-220-7333
Office: 905-335-3042

REQUEST MORE INFORMATION

Grocery Stores
Schools
Restaurants
Gas Stations
Banks
Parks
Transit
Police
Fire Station
Place of Worship
Please select an amenity above to view a list.





team photo

Connect with Us

Loading...