Skip the navigation and jump to this page's content.

12 White Owl Crescent Brantford, Ontario

$520,999
2 Beds
  3 Full / 2 Half

PROPERTY INFO

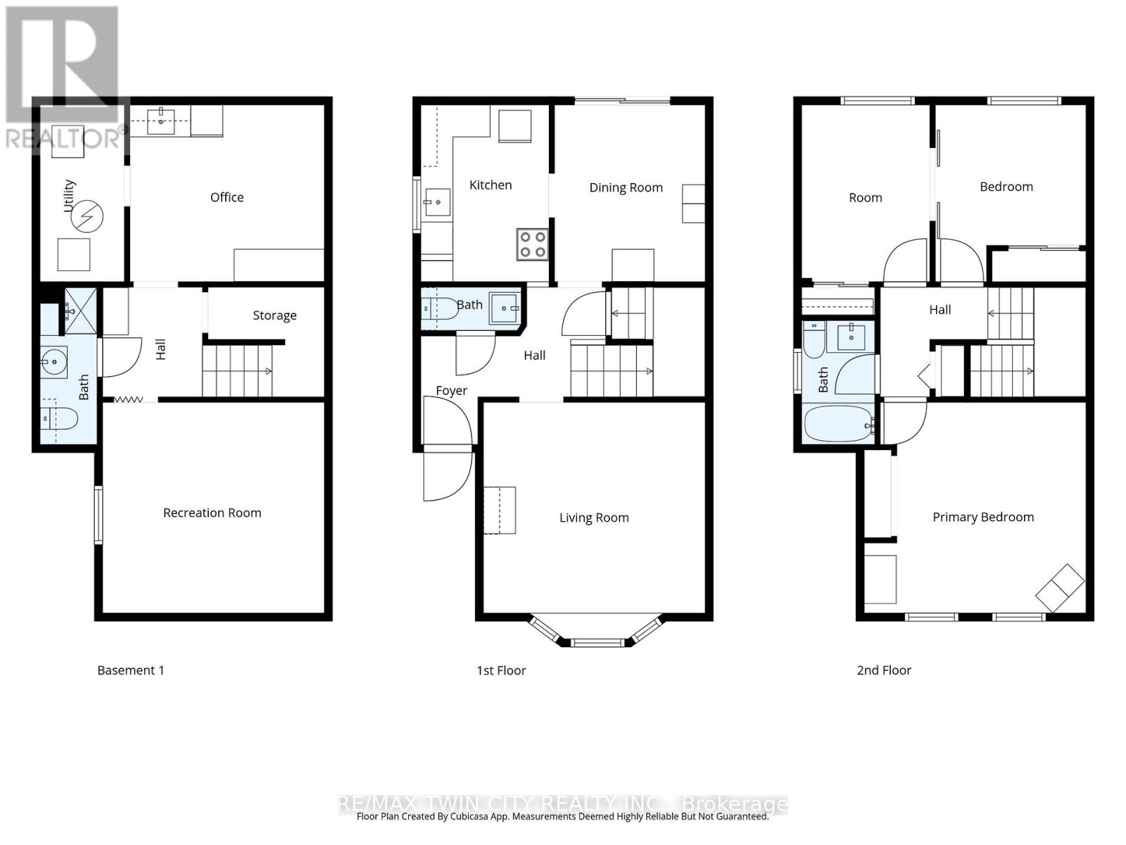
Welcome to 12 White Owl Crescent, a home with so much potential, featuring 2 bedrooms plus a den and 3 bathrooms in Brantford's desirable North End. This semi-detached home offers bright living spaces with a large bay window in the front living room, sliding doors off the dining room leading to the deck, and a finished basement with additional living space ideal for lounging, a home office or flex area, and a convenient wet bar with cabinetry. The main level includes a 2-piece powder room, the upper level is complete with a full 4-piece bathroom, and the basement offers a 3-piece bath, making this home well-suited for everyday living and growing families. The large backyard is a standout feature-perfect for kids, dogs, outdoor play, and future family plans. With major updates completed in the last five years, including windows, roof, furnace, A/C, and driveway, you can move in with confidence while adding your own personal touches over time. A fantastic opportunity for first-time buyers or a young family looking to settle into a friendly, convenient North End community. (id:4555)

PROPERTY SPECS

Price $520,999
City Brantford, Ontario
Bed / Bath 2 / 3 Full, 2 Half
Address 12 White Owl Crescent
Listing ID X12636328
Style House
Parking 2.00
Type Residential
Status For Sale

EXTENDED FEATURES

Subtype Single Family Ownership Freehold Basement Finished, N/A Heating / Cooling Forced air, Natural gas Sewer Sanitary sewer Parking 2.00



team photo
Windsor: 519-903-9355
Toronto: 905-220-7333
Office: 905-335-3042

REQUEST MORE INFORMATION

Grocery Stores
Schools
Restaurants
Gas Stations
Banks
Parks
Transit
Police
Fire Station
Place of Worship
Please select an amenity above to view a list.





team photo

Connect with Us

Loading...